Contacta

Solicitud enviada

154.000€

Cerro De La Rinconada Ref. 948228

  • 117 m²
  • 2 hab.
  • 2 bañ.

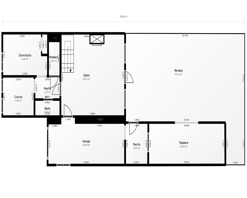
Unifamiliar en venta en Espinar (el) de 117 m²

Dispone2 habitaciones2 baños
Superficie117 m²1316 €/m²
Eficiencia energéticaEn tramite

NO COBRAMOS COMISIÓN DE INTERMEDIACIÓN AL COMPRADOR
Excelente oportunidad de adquirir en propiedad esta casa unifamiliar con una amplia superficie, ubicada en la localidad de El Espinar, provincia de Segovia.
Vivienda que consta de amplios dormitorios, dos plantas y garaje con espacio destinado a trastero. Aprovecha su gran patio para disfrutar del exterior del inmueble. Estado interior en buen estado general, y con múltiples opciones y posibilidades para reformar/actualizar. Inmejorable inmueble para desarrollar tu proyecto de reforma o adecuación. Diseña el hogar de tus sueños a medida, gracias a las numerosas posibilidades de la vivienda. Situada en entorno tranquilo , pero a poca distancia del centro de la localidad dónde disponer de servicios cómo supermercados, comercios, hostelería, plazas, etc.
En urbanización residencial perfectamente comunicada por carretera, próxima a la autovía AP-6 y carretera N-VI y a 3 kilómetros se sitúa estación de la urbanización.
Municipio situado al pie de la sierra de Guadarrama y atravesado por la carretera nacional N-6 y la autopista AP-6 que unen Madrid con La Coruña, el municipio ocupa la transición entre la sierra y la meseta castellana.
Por lo tanto la vivienda disfruta de un entorno tranquilo y natural, pero sin renunciar a todos los servicios, equipamientos y atractivos necesarios para una gran calidad de vida. Sus accesos, comunicaciones y transportes harán que tengas todo a tu alcance.
No lo dudes, invertir en el inmueble que te ofrecemos será una apuesta segura.

* Los precios de los inmuebles que se muestran en la página web, así como las reservas y las ventas de viviendas publicadas, pueden variar por motivos de actualización de los mismos con los proveedores durante un plazo de 48 a 72 horas.
La presente publicación tiene carácter meramente informativo, orientativo y no vinculante, por lo que no supone información contractual alguna, siendo su uso estrictamente comercial. Este anuncio puede contener errores, se muestra a título informativo de la información recibida, sin ser responsable la inmobiliaria de dichos errores.

Solicitud enviada

En breve el anunciante contactará contigo

Cerro De La Rinconada, Espinar (El), Segovia

Viviendas relacionadas

Contacta con nosotros

Los datos de carácter personal que consten en la consulta serán tratados por PROYECTIZATE EN LA NUBE, S.L. e incorporados a la actividad de tratamiento CONTACTOS, cuya finalidad es atender tus solicitudes, peticiones o consultas recibidas desde la web, mediante correo electrónico o telefónico. Dar respuesta a tu solicitud y hacer un seguimiento posterior. La legitimación del tratamiento es tu consentimiento. Tus datos no serán cedidos a terceros. Tienes derecho a acceder, rectificar y suprimir tus datos, así como otros derechos como se explica en nuestra política de privacidad: https://www.adelopd.com/privacidad/proyectizate-en-la-nube-sl

Otros pisos en Segovia

Otras búsquedas