Contacta

Solicitud enviada

230.000€

DOS DE MAIG Ref. 958579

  • 1 m²
  • 3 hab.
  • 1 bañ.

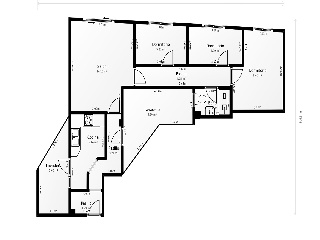
Piso en venta en Viladecans de 0 m²

Dispone3 habitaciones1 baño
Superficie1 m²230000 €/m²
Eficiencia energéticaTrue

NO COBRAMOS COMISIÓN DE INTERMEDIACIÓN AL COMPRADOR
Excelente oportunidad de adquirir en propiedad este piso en edificio plurifamiliar con ascensor, ubicado en la localidad de Viladecans, provincia de Barcelona.
Disfruta de este acogedor piso que cuenta con amplio salón con salida a balcón, suelos de gres, splits de climatización, amplia cocina office con salida a patio interior. En buen estado en general y con grandes posibilidades de adecuación y reforma por si deseas personalizar los acabados de tu nuevo hogar.
Situado en una zona residencial tranquila, este inmueble disfruta de una ubicación estratégica. A poca distancia, encontrarás supermercados, colegios, centros de salud y una variada oferta de tiendas y restaurantes. Además, su cercanía a la capital de provincia y segunda capital estatal, Barcelona, multiplica el atractivo del citado inmueble.
Viladecans es una ciudad de la comarca del Bajo Llobregat, en la provincia de Barcelona (España). Se encuentra en el área metropolitana de Barcelona. Es una ciudad que ha experimentado un crecimiento demográfico muy importante en las últimas décadas debido a su cercanía a Barcelona, lo que ha dado lugar a que en el siglo XXI se hayan superado los 65.000 habitantes.
Por lo tanto la vivienda disfruta de un entorno tranquilo, pero sin renunciar a todos los servicios, equipamientos y atractivos necesarios para una gran calidad de vida. Sus accesos, comunicaciones y transportes harán que tengas todo a tu alcance.
No lo dudes, invertir en el inmueble que te ofrecemos será una apuesta segura.

* Los precios de los inmuebles que se muestran en la página web, así como las reservas y las ventas de viviendas publicadas, pueden variar por motivos de actualización de los mismos con los proveedores durante un plazo de 48 a 72 horas.
La presente publicación tiene carácter meramente informativo, orientativo y no vinculante, por lo que no supone información contractual alguna, siendo su uso estrictamente comercial. Este anuncio puede contener errores, se muestra a título informativo de la información recibida, sin ser responsable la inmobiliaria de dichos errores.

Solicitud enviada

En breve el anunciante contactará contigo

DOS DE MAIG, Viladecans, Barcelona

Viviendas relacionadas

Contacta con nosotros

Los datos de carácter personal que consten en la consulta serán tratados por PROYECTIZATE EN LA NUBE, S.L. e incorporados a la actividad de tratamiento CONTACTOS, cuya finalidad es atender tus solicitudes, peticiones o consultas recibidas desde la web, mediante correo electrónico o telefónico. Dar respuesta a tu solicitud y hacer un seguimiento posterior. La legitimación del tratamiento es tu consentimiento. Tus datos no serán cedidos a terceros. Tienes derecho a acceder, rectificar y suprimir tus datos, así como otros derechos como se explica en nuestra política de privacidad: https://www.adelopd.com/privacidad/proyectizate-en-la-nube-sl

Otros pisos en Barcelona

Otras búsquedas