Contacta

Solicitud enviada

47.120€

Bonillo Ref. 942330

  • 98 m²
  • 1 hab.
  • 1 bañ.

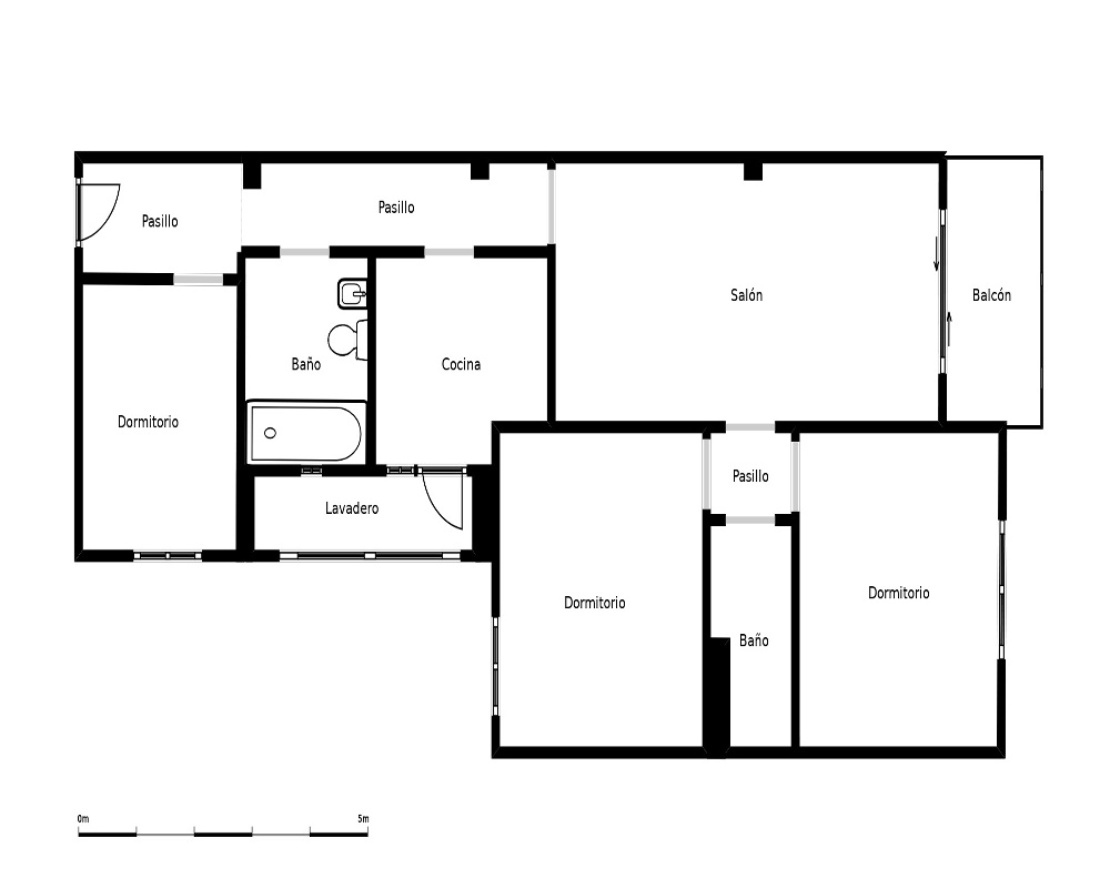
Piso en venta en Socuéllamos de 98 m²

Dispone1 habitación1 baño
Superficie98 m²481 €/m²
Eficiencia energéticaTrue

NO COBRAMOS COMISIÓN DE INTERMEDIACIÓN AL COMPRADOR
Oportunidad para reformar a tu gusto: piso amplio en Socuéllamos
Este piso en edificio residencial con ascensor, en la localidad de Socuéllamos, provincia de Ciudad Real, es la oportunidad perfecta para quienes desean reformar y personalizar cada rincón de su vivienda. Su estado actual permite una reforma integral, lo que abre la puerta a diseñar un espacio adaptado a tus necesidades, estilo y ritmo de vida.
El piso se distribuye en un salón-comedor espacioso y muy versátil, ideal para crear una zona de estar y comedor acogedora y funcional, con acceso a una terraza cerrada, una cocina, independiente, ofrece múltiples posibilidades de rediseño, 3 dormitorios de buen tamaño, con ventanas que aseguran una entrada generosa de luz natural durante gran parte del día y 1 baño completo también está listo para ser actualizado y rediseñado.
Ubicado en una zona residencial tranquila, este piso se encuentra a menos de 5 minutos andando del centro urbano, con acceso inmediato a todo tipo de servicios: supermercados, centros de salud, colegios, farmacias y transporte público. Socuéllamos es una localidad con gran calidad de vida, conocida por su tradición vitivinícola y su buena conexión con ciudades como Tomelloso o Alcázar de San Juan, gracias a la cercanía de la N-310 y líneas de autobús.
Este inmueble representa una excelente oportunidad tanto para particulares que buscan crear su primera vivienda como para inversores que deseen obtener rentabilidad a medio plazo. La posibilidad de reforma ofrece un valor añadido clave en un mercado cada vez más orientado a la personalización.

* Los precios de los inmuebles que se muestran en la página web, así como las reservas y las ventas de viviendas publicadas, pueden variar por motivos de actualización de los mismos con los proveedores durante un plazo de 48 a 72 horas.
La presente publicación tiene carácter meramente informativo, orientativo y no vinculante, por lo que no supone información contractual alguna, siendo su uso estrictamente comercial. Este anuncio puede contener errores, se muestra a título informativo de la información recibida, sin ser responsable la inmobiliaria de dichos errores.

Solicitud enviada

En breve el anunciante contactará contigo

Bonillo, Socuéllamos, Ciudad Real

Viviendas relacionadas

Contacta con nosotros

Los datos de carácter personal que consten en la consulta serán tratados por PROYECTIZATE EN LA NUBE, S.L. e incorporados a la actividad de tratamiento CONTACTOS, cuya finalidad es atender tus solicitudes, peticiones o consultas recibidas desde la web, mediante correo electrónico o telefónico. Dar respuesta a tu solicitud y hacer un seguimiento posterior. La legitimación del tratamiento es tu consentimiento. Tus datos no serán cedidos a terceros. Tienes derecho a acceder, rectificar y suprimir tus datos, así como otros derechos como se explica en nuestra política de privacidad: https://www.adelopd.com/privacidad/proyectizate-en-la-nube-sl

Otros pisos en Ciudad Real

Otras búsquedas