Contacta

Solicitud enviada

178.000€

GALICIA (DE) Ref. 958935

  • 497 m²
  • 3 hab.
  • 2 bañ.

Piso en venta en Ponteareas de 497 m²

Dispone3 habitaciones2 baños
Superficie497 m²358 €/m²
Eficiencia energéticaEn tramite

NO COBRAMOS COMISIÓN DE INTERMEDIACIÓN AL COMPRADOR
Excelente oportunidad de adquirir en propiedad este edificio, con parte destinada a fines comerciales y plantas altas para viviendas, ubicado en la localidad de Ponteareas, provincia de Pontevedra.
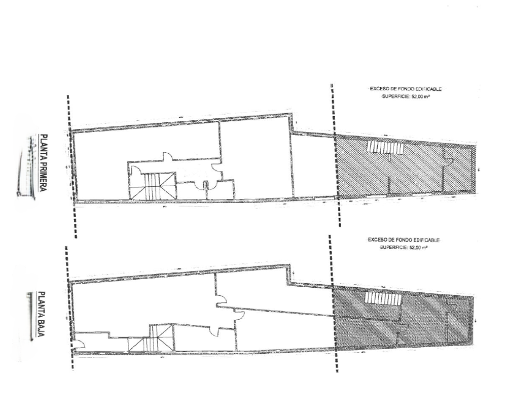
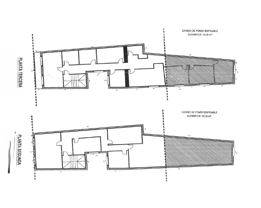
Casa de planta baja destinada a fines comerciales ( último uso cómo bar-restaurante) , con 167 m2 construidos. Su primera planta también se destina a fines comerciales y cuenta con 111 m2 construidos. La segunda planta se destina a vivienda, también con 111 m2 construidos; y una última tercera planta también destinada a vivienda con 108 m2 construidos.
Aprovecha las múltiples posibilidades de distribución, adecuación y reforma para configurar tu nuevo negocio en el local que te ofrecemos. Además , por su gran tránsito comercial, visibilidad desde la vía pública y cómodos accesos, lo convierten en perfecto e inigualable en el centro de la localidad.
Podrás establecer tu negocio y domicilio en la misma ubicación debido a las características del inmueble.
Se encuentra en inmejorable situación, en el centro de la población, con todos los servicios y equipamientos a tan sólo un paso.
Por lo tanto el local comercial tiene cercanos todos los servicios, equipamientos y atractivos necesarios para una gran afluencia de clientes. Empieza ya tu idea de emprendimiento.
No lo dudes, invertir en el local que te ofrecemos será una apuesta segura.

* Los precios de los inmuebles que se muestran en la página web, así como las reservas y las ventas de viviendas publicadas, pueden variar por motivos de actualización de los mismos con los proveedores durante un plazo de 48 a 72 horas.
La presente publicación tiene carácter meramente informativo, orientativo y no vinculante, por lo que no supone información contractual alguna, siendo su uso estrictamente comercial. Este anuncio puede contener errores, se muestra a título informativo de la información recibida, sin ser responsable la inmobiliaria de dichos errores.

Solicitud enviada

En breve el anunciante contactará contigo

GALICIA (DE), Ponteareas, Pontevedra

Viviendas relacionadas

Contacta con nosotros

Los datos de carácter personal que consten en la consulta serán tratados por PROYECTIZATE EN LA NUBE, S.L. e incorporados a la actividad de tratamiento CONTACTOS, cuya finalidad es atender tus solicitudes, peticiones o consultas recibidas desde la web, mediante correo electrónico o telefónico. Dar respuesta a tu solicitud y hacer un seguimiento posterior. La legitimación del tratamiento es tu consentimiento. Tus datos no serán cedidos a terceros. Tienes derecho a acceder, rectificar y suprimir tus datos, así como otros derechos como se explica en nuestra política de privacidad: https://www.adelopd.com/privacidad/proyectizate-en-la-nube-sl

Otros pisos en Pontevedra

Otras búsquedas