Contacta

Solicitud enviada

84.824€

Minat-Agramo-Mt Ref. 942346

  • 1 m²
  • 4 hab.
  • 2 bañ.

Otros en venta en Hellín de 0 m²

Dispone4 habitaciones2 baños
Superficie1 m²84824 €/m²
Eficiencia energéticaEn tramite

NO COBRAMOS COMISIÓN DE INTERMEDIACIÓN AL COMPRADOR
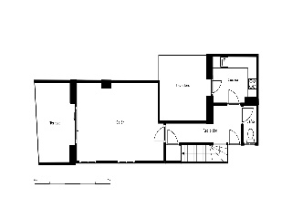
Excelente oportunidad de adquirir en propiedad esta vivienda independiente, bien distribuidos en tres plantas. La planta baja cuenta con garaje y trastero, la segunda planta cuenta con un amplio y luminoso salón con salida a terraza donde podrás disfrutar de agradables tardes, una cocina independiente con salida a patrio y un baño. La segunda planta cuenta con 4 dormitorios (uno de ellos con salida a balcón y 3 de ellas con armarios empotrados) y 2 baños, ubicado en la localidad de Hellín provincia de Albacete.
Esta vivienda para reformar es ideal para aquellos que buscan un hogar de calidad con todas las comodidades modernas, sin renunciar a la cercanía de la naturaleza y una excelente conexión con la ciudad.
Ubicación estratégica a tan solo unos minutos del centro de Hellín, tendrás fácil acceso a todos los servicios esenciales como supermercados, colegios, restaurantes, centros de salud, y buenas conexiones de transporte. Además, la ciudad se encuentra bien comunicada con otras localidades de la provincia de Albacete, lo que garantiza una excelente conectividad. Además, la propiedad se encuentra en un barrio residencial, ideal para familias o quienes deseen vivir en un entorno tranquilo y seguro.
¡Ven a conocerlo y empieza a imaginar tu vida aquí!

* Los precios de los inmuebles que se muestran en la página web, así como las reservas y las ventas de viviendas publicadas, pueden variar por motivos de actualización de los mismos con los proveedores durante un plazo de 48 a 72 horas.
La presente publicación tiene carácter meramente informativo, orientativo y no vinculante, por lo que no supone información contractual alguna, siendo su uso estrictamente comercial. Este anuncio puede contener errores, se muestra a título informativo de la información recibida, sin ser responsable la inmobiliaria de dichos errores.

Solicitud enviada

En breve el anunciante contactará contigo

Minat-Agramo-Mt, Hellín, Albacete

Viviendas relacionadas

Contacta con nosotros

Los datos de carácter personal que consten en la consulta serán tratados por PROYECTIZATE EN LA NUBE, S.L. e incorporados a la actividad de tratamiento CONTACTOS, cuya finalidad es atender tus solicitudes, peticiones o consultas recibidas desde la web, mediante correo electrónico o telefónico. Dar respuesta a tu solicitud y hacer un seguimiento posterior. La legitimación del tratamiento es tu consentimiento. Tus datos no serán cedidos a terceros. Tienes derecho a acceder, rectificar y suprimir tus datos, así como otros derechos como se explica en nuestra política de privacidad: https://www.adelopd.com/privacidad/proyectizate-en-la-nube-sl

Otros pisos en Albacete

Otras búsquedas