Contacta

Solicitud enviada

519.000€

EL PUERTO Ref. 956644

    Otros en venta en Garrucha

    Eficiencia energéticaEn tramite

    NO COBRAMOS COMISIÓN DE INTERMEDIACIÓN AL COMPRADOR
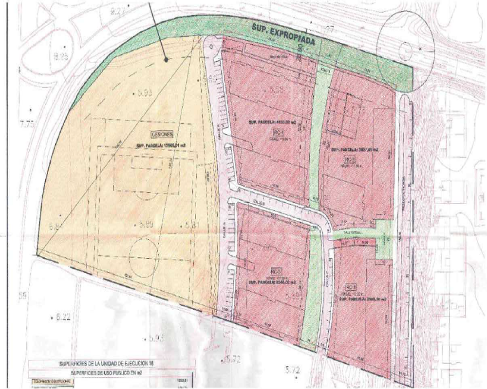
    Excelente oportunidad de adquirir en propiedad este suelo urbano residencial en propiedad ubicado en Garrucha (Almería).
    - Edificabilidad: 19.728,4 m2c.
    - Altura máxima: III sobre rasante, I bajo rasante.
    - Referencia catastral: 4566604XG0146N0000DS
    La posesión de un suelo otorga al propietario facultades, deberes y cargas basadas en las leyes urbanísticas. El cumplimiento de las mismas previene de sanciones, multas y facilita el camino para ser partícipe en un nuevo plan de urbanización. En todo caso, siempre es recomendable consultar con la Administración las ordenaciones territoriales.
    En una zona inmejorable muy bien comunicada por carretera, lo que facilita los desplazamientos a distintos puntos de la región o del país. Situado en una zona residencial tranquila, aprovecha de esta propiedad en una ubicación estratégica. Dispone de todos los servicios públicos o privados necesarios como pequeño comercio de proximidad, supermercados y gran oferta gastronómica.
    Garrucha, en la costa almeriense, combina a la perfección el encanto de un puerto pesquero tradicional con la belleza de sus excelentes playas, de arena dorada y aguas cristalinas. Conocida por su gastronomía basada en productos del mar, donde la reina indiscutible es su famosa gamba roja, desde su imponente Castillo de San Ramón hasta las bulliciosas subastas de pescado en la lonja, pasando por su relajante paseo marítimo, Garrucha sigue conservando, pese al turismo, el encanto de un pequeño pueblo marinero.

    * Los precios de los inmuebles que se muestran en la página web, así como las reservas y las ventas de viviendas publicadas, pueden variar por motivos de actualización de los mismos con los proveedores durante un plazo de 48 a 72 horas.
    La presente publicación tiene carácter meramente informativo, orientativo y no vinculante, por lo que no supone información contractual alguna, siendo su uso estrictamente comercial. Este anuncio puede contener errores, se muestra a título informativo de la información recibida, sin ser responsable la inmobiliaria de dichos errores.

    Solicitud enviada

    En breve el anunciante contactará contigo

    EL PUERTO, Garrucha, Almeria

    Viviendas relacionadas

    Contacta con nosotros

    Los datos de carácter personal que consten en la consulta serán tratados por PROYECTIZATE EN LA NUBE, S.L. e incorporados a la actividad de tratamiento CONTACTOS, cuya finalidad es atender tus solicitudes, peticiones o consultas recibidas desde la web, mediante correo electrónico o telefónico. Dar respuesta a tu solicitud y hacer un seguimiento posterior. La legitimación del tratamiento es tu consentimiento. Tus datos no serán cedidos a terceros. Tienes derecho a acceder, rectificar y suprimir tus datos, así como otros derechos como se explica en nuestra política de privacidad: https://www.adelopd.com/privacidad/proyectizate-en-la-nube-sl

    Otros pisos en Almería

    Otras búsquedas