Contacta

Solicitud enviada

A consultar

BARTOLO Ref. 945887

    Otros en venta en Ávila

    Eficiencia energéticaEn tramite

    NO COBRAMOS COMISIÓN DE INTERMEDIACIÓN AL COMPRADOR
    Excelente oportunidad de adquirir esta propiedad ubicada en esta localidad.
    Muy bien comunicado al sur de la localidad con buenas conexiones por carretera por la N-403 y carreteras interurbanas. La ciudad se encuentra cerca de la autovía A-6, que conecta Madrid con Galicia, lo que facilita los desplazamientos hacia otras ciudades de la región y del país. Además, la ciudad cuenta con una estación de tren que ofrece conexiones con Madrid, Salamanca, Valladolid y otras ciudades cercanas. Se encuentra a pocos metros del río Adaja, se encuentra en el centro de la ciudad, lo que permite acceder fácilmente a los principales lugares de interés turístico, así como a una amplia gama de servicios y comodidades. Ávila cuenta con una variedad de tiendas, restaurantes, bares, supermercados y otros establecimientos comerciales, que se distribuyen por el casco antiguo y las áreas circundantes. Dispone de todos los servicios públicos o privados necesarios como alumbrado, calles asfaltadas de reciente construcción.
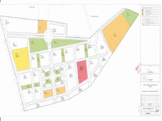
    Parcela resultante RB-01.A bloque abierto de vivienda colectiva de 3 plantas sobre rasante con una superficie inscrita de 9.261,00 para la construcción de 180 viviendas con una edificabilidad máxima de 12.245,00 m² sobre rasante, y 225 plazas de garaje bajo rasante de 28 m2ct dando una superficie de 6.300 m2 (1,25 plazas de garaje por vivienda).
    - Referencia catastral: No consta.

    * Los precios de los inmuebles que se muestran en la página web, así como las reservas y las ventas de viviendas publicadas, pueden variar por motivos de actualización de los mismos con los proveedores durante un plazo de 48 a 72 horas.
    La presente publicación tiene carácter meramente informativo, orientativo y no vinculante, por lo que no supone información contractual alguna, siendo su uso estrictamente comercial. Este anuncio puede contener errores, se muestra a título informativo de la información recibida, sin ser responsable la inmobiliaria de dichos errores.

    Solicitud enviada

    En breve el anunciante contactará contigo

    BARTOLO, Ávila, Avila

    Viviendas relacionadas

    Contacta con nosotros

    Los datos de carácter personal que consten en la consulta serán tratados por PROYECTIZATE EN LA NUBE, S.L. e incorporados a la actividad de tratamiento CONTACTOS, cuya finalidad es atender tus solicitudes, peticiones o consultas recibidas desde la web, mediante correo electrónico o telefónico. Dar respuesta a tu solicitud y hacer un seguimiento posterior. La legitimación del tratamiento es tu consentimiento. Tus datos no serán cedidos a terceros. Tienes derecho a acceder, rectificar y suprimir tus datos, así como otros derechos como se explica en nuestra política de privacidad: https://www.adelopd.com/privacidad/proyectizate-en-la-nube-sl

    Otros pisos en Ávila

    Otras búsquedas