Contacta

Solicitud enviada

424.800€

ESTACIÓN Ref. 946156

  • 3873 m²

Otros en venta en Llerena de 3873 m²

Descuento de 105.200,00 € *

* Ya aplicado en el precio mostrado.
Precio antes del descuento: 530.000€

Superficie3873 m²110 €/m²
Eficiencia energéticaEn tramite

NO COBRAMOS COMISIÓN DE INTERMEDIACIÓN AL COMPRADOR
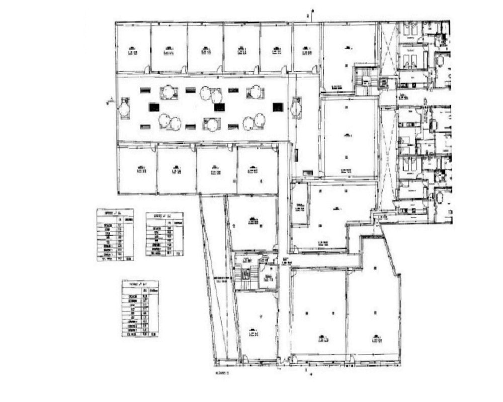
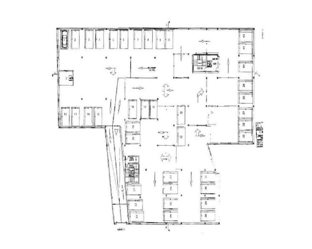
CONSTRUCCIÓN OBRA PARADA: Gran oportunidad de adquirir este edificio con ascensor y garaje pendiente de acondicionar ubicado en la localidad de Llerena (Badajoz).
- Número de viviendas: 21 ud.
- Grado de ejecución: 65%
- Altura máxima: Bajo + 2
- Referencia catastral: 1866808QC6316N0001KQ
Representa una inversión ideal para evitar las connotaciones de cambio ambiental que afecta de forma inevitable al coche que, al dormir en la calle es vulnerable ante el efecto de la lluvia, la nieve o el calor. Es un ahorro en el consumo del combustible, así como el ahorro del tiempo en los desplazamientos, la mejor inversión para invertir esos minutos en tu propio bienestar.
Muy bien comunicada por carretera como la N-432 y carreteras interurbanas que atraviesa el municipio y conecta con otras localidades cercanas y con las principales vías de comunicación de la región. Además, cuenta con buenas conexiones por carretera con ciudades importantes de Extremadura, como Mérida y Badajoz. Uno de los pueblos más bonitos de toda Extremadura, con mucha historia y repleto de palacios como el del Maestral que fue la sede de la Inquisición, las ruinas romanas de Regina o la antigua puerta de Montemolín. Rodeado de extensas tierras de cultivo y paisajes naturales de gran belleza. El municipio se encuentra en la comarca de Campiña Sur, conocida por su clima mediterráneo, sus suaves colinas y su rica historia. Dispone de todos los servicios públicos o privados necesarios como pequeño comercio de proximidad, hospital, gran oferta en restauración, centros educativos, y supermercados.

* Los precios de los inmuebles que se muestran en la página web, así como las reservas y las ventas de viviendas publicadas, pueden variar por motivos de actualización de los mismos con los proveedores durante un plazo de 48 a 72 horas.
La presente publicación tiene carácter meramente informativo, orientativo y no vinculante, por lo que no supone información contractual alguna, siendo su uso estrictamente comercial. Este anuncio puede contener errores, se muestra a título informativo de la información recibida, sin ser responsable la inmobiliaria de dichos errores.

Solicitud enviada

En breve el anunciante contactará contigo

ESTACIÓN, Llerena, Badajoz

Viviendas relacionadas

Contacta con nosotros

Los datos de carácter personal que consten en la consulta serán tratados por PROYECTIZATE EN LA NUBE, S.L. e incorporados a la actividad de tratamiento CONTACTOS, cuya finalidad es atender tus solicitudes, peticiones o consultas recibidas desde la web, mediante correo electrónico o telefónico. Dar respuesta a tu solicitud y hacer un seguimiento posterior. La legitimación del tratamiento es tu consentimiento. Tus datos no serán cedidos a terceros. Tienes derecho a acceder, rectificar y suprimir tus datos, así como otros derechos como se explica en nuestra política de privacidad: https://www.adelopd.com/privacidad/proyectizate-en-la-nube-sl

Otros pisos en Badajoz

Otras búsquedas