Contacta

Solicitud enviada

598.000€

BELLSOLELL Ref. 945821

    Otros en venta en Arenys De Munt

    Descuento de 45.000,00 € *

    * Ya aplicado en el precio mostrado.
    Precio antes del descuento: 643.000€

    Eficiencia energéticaEn tramite

    NO COBRAMOS COMISIÓN DE INTERMEDIACIÓN AL COMPRADOR
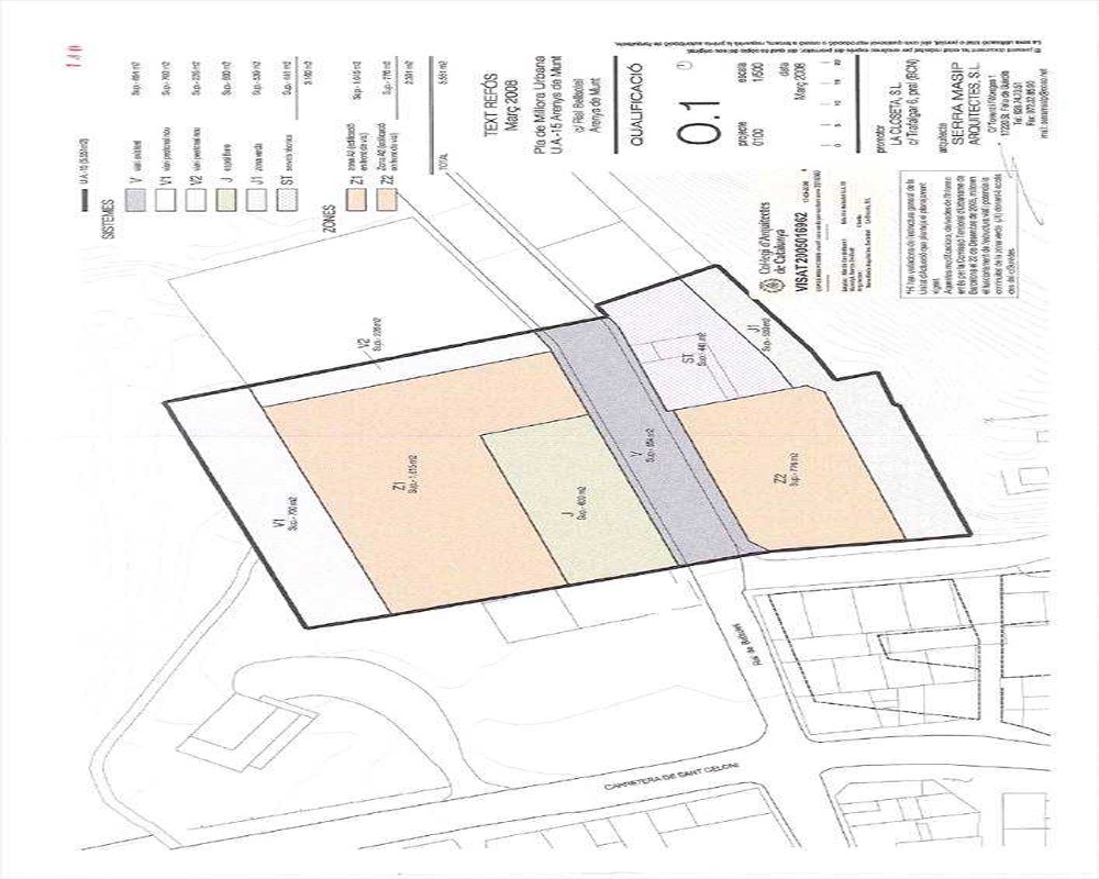
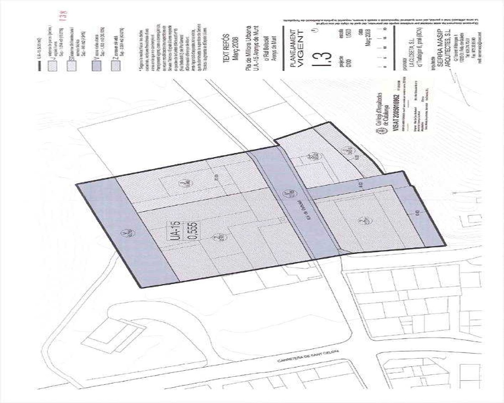
    Excelente oportunidad de adquirir este suelo ubicado en la localidad Arenys de Munt, provincia de Barcelona.
    - Referencia catastral: 1968805DG6016N0001HW
    -Clasificación: Urbano
    -Calificación: Residencial
    -Edificabilidad: 2.223m²
    -Altura máxima: 3 plantas, 9,50 metros
    -Hipótesis: La promoción inmobiliaria más probable es la construcción de un bloque residencial de 27 viviendas tipo piso de superficie media 82,33 y que agoten la edificabilidad existente sobre rasante. También se plantea la edificación de 27 plazas de aparcamiento de 25 metros cuadrados bajo rasante, sin computar edificabilidad.
    Muy bien comunicado por carretera como la C-35, N-II, que facilitan los desplazamientos a distintos puntos de la región o del país, así como de por servicio ferroviario. Situado en el interior del Maresme, sólo a 45 km de Barcelona y 10 de Mataró, debe su personalidad a la Riera que le atraviesa y que concentra a su alrededor un montón de comercio y de vida. Arenys de Munt es un pueblo para disfrutar de la tranquilidad, una villa nacida en el siglo IX donde se puede conocer la tradición encajera y la naturaleza del Maresme. Es un pueblo para saborear la gastronomía de la comarca.
    Por lo tanto la promoción a desarrollar disfrutará de un entorno tranquilo y natural, pero sin renunciar a todos los servicios, equipamientos y atractivos necesarios para una gran calidad de vida. Sus accesos, comunicaciones y transportes harán que tengas todo a tu alcance.

    * Los precios de los inmuebles que se muestran en la página web, así como las reservas y las ventas de viviendas publicadas, pueden variar por motivos de actualización de los mismos con los proveedores durante un plazo de 48 a 72 horas.
    La presente publicación tiene carácter meramente informativo, orientativo y no vinculante, por lo que no supone información contractual alguna, siendo su uso estrictamente comercial. Este anuncio puede contener errores, se muestra a título informativo de la información recibida, sin ser responsable la inmobiliaria de dichos errores.

    Solicitud enviada

    En breve el anunciante contactará contigo

    BELLSOLELL, Arenys de Munt, Barcelona

    Viviendas relacionadas

    Contacta con nosotros

    Los datos de carácter personal que consten en la consulta serán tratados por PROYECTIZATE EN LA NUBE, S.L. e incorporados a la actividad de tratamiento CONTACTOS, cuya finalidad es atender tus solicitudes, peticiones o consultas recibidas desde la web, mediante correo electrónico o telefónico. Dar respuesta a tu solicitud y hacer un seguimiento posterior. La legitimación del tratamiento es tu consentimiento. Tus datos no serán cedidos a terceros. Tienes derecho a acceder, rectificar y suprimir tus datos, así como otros derechos como se explica en nuestra política de privacidad: https://www.adelopd.com/privacidad/proyectizate-en-la-nube-sl

    Otros pisos en Barcelona

    Otras búsquedas