Contacta

Solicitud enviada

563.800€

ERAS Ref. 946147

  • 698770 m²

Otros en venta en Briones de 698770 m²

Superficie698770 m²1 €/m²
Eficiencia energéticaEn tramite

NO COBRAMOS COMISIÓN DE INTERMEDIACIÓN AL COMPRADOR
Se trata de 14 viviendas unifamiliares adosadas y 2 pareadas de un conjunto de 20 viviendas (18+2) alineadas en dos bloques con una zona común en un lateral en dos (Baja + I).
En el primer bloque se ubican 10 viviendas de 127 m2, todas ellas propiedad de SAREB. En el segundo bloque se ubican 8 viviendas de 160 m2 de las cuales SAREB es propietaria de cuatro de ellas. Además, existen dos viviendas pareadas de 173 m2 propiedad de SAREB en estructura.
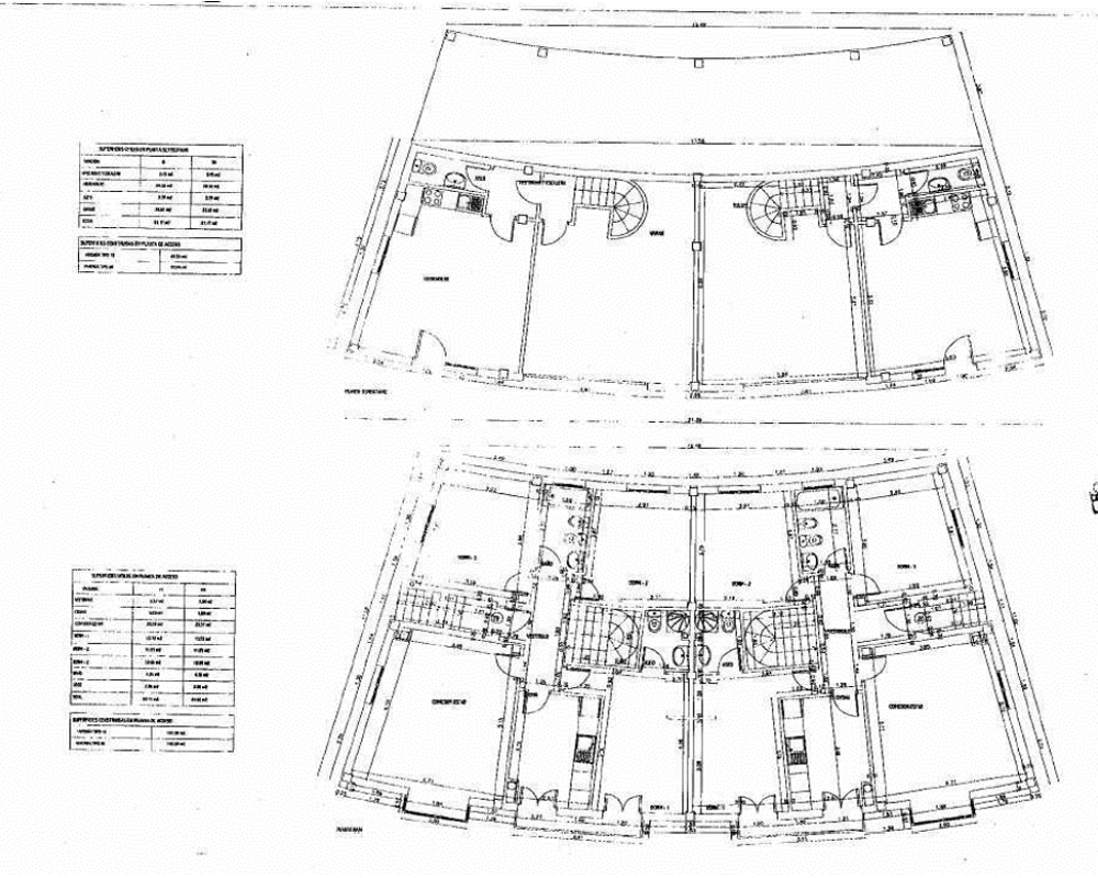
Edificio 1: Total 10 viviendas adosadas tipo 1. Cada vivienda consta de planta baja con garaje, vestíbulo, escalera, cocina, salón y aseo y planta primera con escalera, distribuidor, tres dormitorios y dos baños.
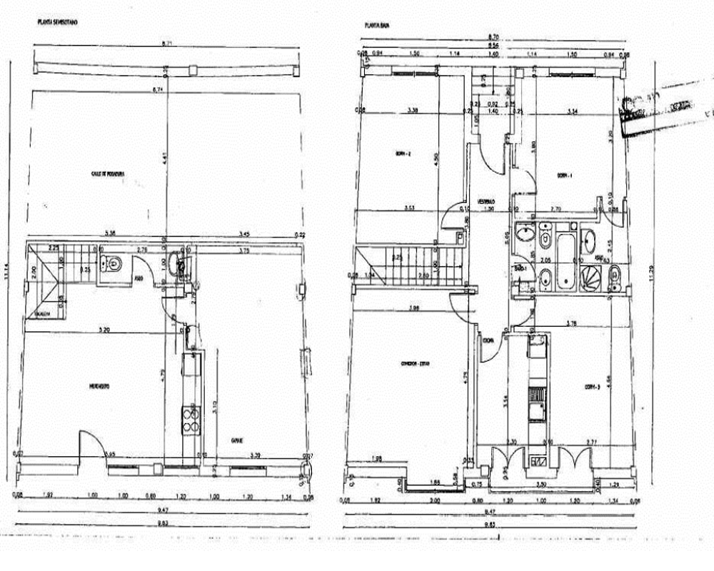
Edificio 2: Total 8 viviendas adosadas tipo 2. Cada vivienda consta de planta semisótano con merendero y garaje al que se accede desde una calle subterránea común y planta baja con vestíbulo, salón, cocina, tres dormitorios, un baño y un aseo.
Edificio 3: Total 2 viviendas pareadas tipo 3. Cada vivienda consta de una planta sótano con un garaje, aseo, merendero y escalera u una planta baja con vestíbulo, salón, cocina, tres dormitorios, un baño y un aseo.
Con una sup. 4.542m2s y una edificabilidad de 2256m2c, Grado de acabado total se calcula en un 40 %.
La urbanización privada se encuentra al 80 % , debiendo desarrollar el vial interior de acceso a las viviendas, así como el vial de acceso a la promoción que debe conectar con la carretera nacional. Las viviendas cuentan con zona libre privada para jardín de superficies entre 43 y 170 m2.
Ref. Catastral: 7502004WN1170S0001YS.

* Los precios de los inmuebles que se muestran en la página web, así como las reservas y las ventas de viviendas publicadas, pueden variar por motivos de actualización de los mismos con los proveedores durante un plazo de 48 a 72 horas.
La presente publicación tiene carácter meramente informativo, orientativo y no vinculante, por lo que no supone información contractual alguna, siendo su uso estrictamente comercial. Este anuncio puede contener errores, se muestra a título informativo de la información recibida, sin ser responsable la inmobiliaria de dichos errores.

Solicitud enviada

En breve el anunciante contactará contigo

ERAS, Briones, La Rioja

Viviendas relacionadas

Contacta con nosotros

Los datos de carácter personal que consten en la consulta serán tratados por PROYECTIZATE EN LA NUBE, S.L. e incorporados a la actividad de tratamiento CONTACTOS, cuya finalidad es atender tus solicitudes, peticiones o consultas recibidas desde la web, mediante correo electrónico o telefónico. Dar respuesta a tu solicitud y hacer un seguimiento posterior. La legitimación del tratamiento es tu consentimiento. Tus datos no serán cedidos a terceros. Tienes derecho a acceder, rectificar y suprimir tus datos, así como otros derechos como se explica en nuestra política de privacidad: https://www.adelopd.com/privacidad/proyectizate-en-la-nube-sl

Otros pisos en Briones

Otras búsquedas