Contacta

Solicitud enviada

41.000€

Carretera Málaga Ref. 946651

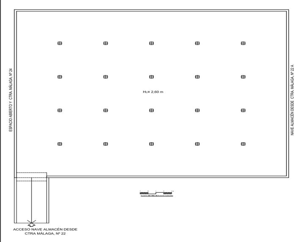
  • 529 m²

Otros en venta en Línea De La Concepción (la) de 529 m²

Superficie529 m²78 €/m²
Eficiencia energéticaEn tramite

NO COBRAMOS COMISIÓN DE INTERMEDIACIÓN AL COMPRADOR
Excelente oportunidad de adquirir esta nave industrial de estructura metálica, láminas corrugadas en sus techos con cubierta a dos aguas y puerta basculante con acceso peatonal ubicada en La Línea de la Concepción, Cádiz.
Esta nave industrial perfecta para cualquier tipo de actividad industrial o comercial. La ubicación de la nave es ideal, ya que está situada en el Polígono Industrial el Zabal y una de las zonas más comerciales de la ciudad, lo que garantiza una gran visibilidad para su negocio.
La nave industrial está en buenas condiciones, con una estructura sólida y modernas instalaciones que incluyen sistemas eléctricos y de ventilación actualizados. Además, cuenta con amplios espacios de almacenamiento y producción, lo que permite una fácil organización y gestión de sus operaciones. Grandes espacios planos y diáfanos que deben poder acoger la producción de cualquier producto o servicio o actividad que se genere a su alrededor: equipamientos para fabricación, logística, almacenamiento, zonas de trabajo para operarios, entrada y salida de mercancías, oficinas, vestuarios, servicios, etc...
Tiene buena comunicación y fácil acceso, lo que facilita el transporte de mercancía a través de la carretera Málaga, que comunica la ciudad con Manilva, Estepona y con Algeciras.

* Los precios de los inmuebles que se muestran en la página web, así como las reservas y las ventas de viviendas publicadas, pueden variar por motivos de actualización de los mismos con los proveedores durante un plazo de 48 a 72 horas.
La presente publicación tiene carácter meramente informativo, orientativo y no vinculante, por lo que no supone información contractual alguna, siendo su uso estrictamente comercial. Este anuncio puede contener errores, se muestra a título informativo de la información recibida, sin ser responsable la inmobiliaria de dichos errores.

Solicitud enviada

En breve el anunciante contactará contigo

Carretera Málaga, Línea de la Concepción (La), Cadiz

Viviendas relacionadas

Contacta con nosotros

Los datos de carácter personal que consten en la consulta serán tratados por PROYECTIZATE EN LA NUBE, S.L. e incorporados a la actividad de tratamiento CONTACTOS, cuya finalidad es atender tus solicitudes, peticiones o consultas recibidas desde la web, mediante correo electrónico o telefónico. Dar respuesta a tu solicitud y hacer un seguimiento posterior. La legitimación del tratamiento es tu consentimiento. Tus datos no serán cedidos a terceros. Tienes derecho a acceder, rectificar y suprimir tus datos, así como otros derechos como se explica en nuestra política de privacidad: https://www.adelopd.com/privacidad/proyectizate-en-la-nube-sl

Otros pisos en Cádiz

Otras búsquedas