Contacta

Solicitud enviada

350.000€

Prim Ref. 944029

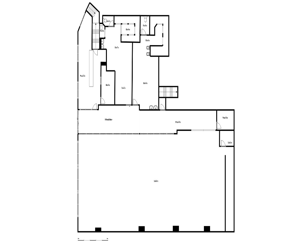
  • 960 m²
  • 3 bañ.

Otros en venta en Castellón De La Plana/castelló De La Plana de 960 m²

Descuento de 20.000,00 € *

* Ya aplicado en el precio mostrado.
Precio antes del descuento: 370.000€

Dispone3 baños
Superficie960 m²365 €/m²
Eficiencia energéticaEn tramite

NO COBRAMOS COMISIÓN DE INTERMEDIACIÓN AL COMPRADOR
Ponemos a tu disposición la magnífica oportunidad de adquirir en propiedad este local comercial que era un antiguo gimnasio, constando de dos plantas y buena visibilidad. Cuenta con una amplia superficie y su distribución cuenta con una recepción con vistas hacia la piscina (duchas y zona de relajación), acceso a los vestuarios y las oficinas del centro. En cuanto a la planta superior, con cerramientos de vidrio tiene vistas hacia la planta baja.
Se ofrece amplio local comercial en una de las zonas más transitadas y comerciales de Castellón de la Plana, ideal para todo tipo de actividades comerciales o de servicios. Una excelente ubicación para establecer tu negocio y asegurar una gran visibilidad y afluencia de clientes.
Este local es una excelente opción para emprendedores y empresas que buscan un espacio bien ubicado en una ciudad activa y en crecimiento como Castellón de la Plana. Su gran superficie, versatilidad y excelente visibilidad lo convierten en el lugar perfecto para negocios que buscan maximizar su impacto comercial en una ubicación privilegiada.
Excelente conexión con transporte público y fácil acceso a vías principales.Rodeado de comercios, restaurantes, y servicios, lo que incrementa el tráfico peatonal y las oportunidades de negocio.

* Los precios de los inmuebles que se muestran en la página web, así como las reservas y las ventas de viviendas publicadas, pueden variar por motivos de actualización de los mismos con los proveedores durante un plazo de 48 a 72 horas.
La presente publicación tiene carácter meramente informativo, orientativo y no vinculante, por lo que no supone información contractual alguna, siendo su uso estrictamente comercial. Este anuncio puede contener errores, se muestra a título informativo de la información recibida, sin ser responsable la inmobiliaria de dichos errores.

Solicitud enviada

En breve el anunciante contactará contigo

Prim, Castellón de la Plana/Castelló de la Plana, Castellon

Viviendas relacionadas

Contacta con nosotros

Los datos de carácter personal que consten en la consulta serán tratados por PROYECTIZATE EN LA NUBE, S.L. e incorporados a la actividad de tratamiento CONTACTOS, cuya finalidad es atender tus solicitudes, peticiones o consultas recibidas desde la web, mediante correo electrónico o telefónico. Dar respuesta a tu solicitud y hacer un seguimiento posterior. La legitimación del tratamiento es tu consentimiento. Tus datos no serán cedidos a terceros. Tienes derecho a acceder, rectificar y suprimir tus datos, así como otros derechos como se explica en nuestra política de privacidad: https://www.adelopd.com/privacidad/proyectizate-en-la-nube-sl

Otros pisos en Castellón de la Plana

Otras búsquedas