Contacta

Solicitud enviada

41.300€

ANTONIO HUERTAS Ref. 957225

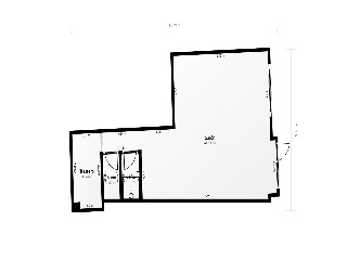
  • 49 m²

Otros en venta en Tomelloso de 49 m²

Superficie49 m²843 €/m²
Eficiencia energéticaEn tramite

NO COBRAMOS COMISIÓN DE INTERMEDIACIÓN AL COMPRADOR
Les ofrecemos en exclusiva este local comercial en edificio residencial que puedes adquirir en propiedad, muy visible y accesible. Ofrece todo lo que necesitas para tu negocio o una interesante inversión inmobiliaria. En la localidad de Tomelloso, provincia de Ciudad Real.
Aprovecha las múltiples posibilidades de distribución, adecuación y reforma para configurar tu nuevo negocio en el local que te ofrecemos. Además , por su gran tránsito comercial, visibilidad desde la vía pública y cómodos accesos, lo convierten en perfecto e inigualable en la localidad.
Tomelloso es municipio y localidad española situado en el noreste de la provincia de Ciudad Real, en la comunidad autónoma de Castilla-La Mancha. El término municipal, ubicado en el centro geográfico de la región natural de La Mancha, tiene 36.523 habitantes (INE 2024) y es el más poblado de la comarca y el octavo de la comunidad autónoma. Tomelloso ha sido históricamente un municipio que ha tendido al emprendimiento. En consecuencia, hay una gran cantidad de pymes y pequeños y grandes propietarios agrícolas. El funcionariado está limitado principalmente a administraciones locales, educación y salud.
Por lo tanto, el local comercial tiene cercanos todos los servicios, equipamientos y atractivos necesarios para una gran afluencia de clientes. Empieza ya tu idea de emprendimiento.
No lo dudes, invertir en el local que te ofrecemos será una apuesta segura. Consulta condiciones actuales de compraventa.

* Los precios de los inmuebles que se muestran en la página web, así como las reservas y las ventas de viviendas publicadas, pueden variar por motivos de actualización de los mismos con los proveedores durante un plazo de 48 a 72 horas.
La presente publicación tiene carácter meramente informativo, orientativo y no vinculante, por lo que no supone información contractual alguna, siendo su uso estrictamente comercial. Este anuncio puede contener errores, se muestra a título informativo de la información recibida, sin ser responsable la inmobiliaria de dichos errores.

Solicitud enviada

En breve el anunciante contactará contigo

ANTONIO HUERTAS, Tomelloso, Ciudad Real

Viviendas relacionadas

Contacta con nosotros

Los datos de carácter personal que consten en la consulta serán tratados por PROYECTIZATE EN LA NUBE, S.L. e incorporados a la actividad de tratamiento CONTACTOS, cuya finalidad es atender tus solicitudes, peticiones o consultas recibidas desde la web, mediante correo electrónico o telefónico. Dar respuesta a tu solicitud y hacer un seguimiento posterior. La legitimación del tratamiento es tu consentimiento. Tus datos no serán cedidos a terceros. Tienes derecho a acceder, rectificar y suprimir tus datos, así como otros derechos como se explica en nuestra política de privacidad: https://www.adelopd.com/privacidad/proyectizate-en-la-nube-sl

Otros pisos en Ciudad Real

Otras búsquedas