Contacta

Solicitud enviada

350.100€

ENEKURIBIDEA Ref. 947028

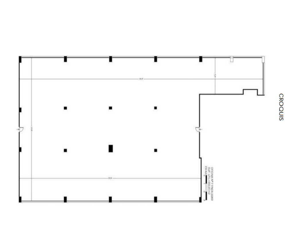
  • 945 m²

Otros en venta en Erandio de 945 m²

Descuento de 36.000,00 € *

* Ya aplicado en el precio mostrado.
Precio antes del descuento: 386.100€

Superficie945 m²370 €/m²
Eficiencia energéticaEn tramite

NO COBRAMOS COMISIÓN DE INTERMEDIACIÓN AL COMPRADOR
Excelente oportunidad de adquirir en propiedad esta oficina ubicada en la localidad de Erandio, provincia de Vizcaya. Dispone de buenos accesos y está bien comunicada.
Oficina en edificio Fátima, en un entorno con excelentes comunicaciones por carretera, a muy poca distancia de la ciudad de Bilbao. En entorno de polígono industrial/comercial con todas las infraestructuras y servicios necesarios para el desarrollo de la actividad industrial y económica. A tan sólo 7 km de Bilbao y 75 km de Vitoria.
Se comercializa junto a plaza de garaje.
Posibilidad de adquirir plazas de garaje adicionales en el mismo edificio.
Se ofertan varias oficinas, con diferentes superficies y características, en el mismo edificio. Consultar condiciones.
Erandio es una localidad muy bien conectada con el resto de Vizcaya. Los barrios de Lutxana, Altzaga y Astrabudua disponen de estaciones de metro, lo cual es muy agradecido por los habitantes. Por Erandio pasan múltiples líneas de Bizkaibus y el municipio cuenta con sus propios mini autobuses.
Por lo tanto, la oficina que te ofrecemos dispone de todo lo necesario para que establezcas tu centro administrativo , o bien obtener una interesante rentabilidad cómo inversión.

* Los precios de los inmuebles que se muestran en la página web, así como las reservas y las ventas de viviendas publicadas, pueden variar por motivos de actualización de los mismos con los proveedores durante un plazo de 48 a 72 horas.
La presente publicación tiene carácter meramente informativo, orientativo y no vinculante, por lo que no supone información contractual alguna, siendo su uso estrictamente comercial. Este anuncio puede contener errores, se muestra a título informativo de la información recibida, sin ser responsable la inmobiliaria de dichos errores.

Solicitud enviada

En breve el anunciante contactará contigo

ENEKURIBIDEA, Erandio, Vizcaya

Viviendas relacionadas

Contacta con nosotros

Los datos de carácter personal que consten en la consulta serán tratados por PROYECTIZATE EN LA NUBE, S.L. e incorporados a la actividad de tratamiento CONTACTOS, cuya finalidad es atender tus solicitudes, peticiones o consultas recibidas desde la web, mediante correo electrónico o telefónico. Dar respuesta a tu solicitud y hacer un seguimiento posterior. La legitimación del tratamiento es tu consentimiento. Tus datos no serán cedidos a terceros. Tienes derecho a acceder, rectificar y suprimir tus datos, así como otros derechos como se explica en nuestra política de privacidad: https://www.adelopd.com/privacidad/proyectizate-en-la-nube-sl

Otros pisos en Erandio

Otras búsquedas