Contacta

Solicitud enviada

888.000€

TARONGERS Ref. 945925

  • 1043 m²

Otros en venta en Bisbal D'empordà (la) de 1043 m²

Descuento de 99.000,00 € *

* Ya aplicado en el precio mostrado.
Precio antes del descuento: 987.000€

Superficie1043 m²851 €/m²
Eficiencia energéticaEn tramite

NO COBRAMOS COMISIÓN DE INTERMEDIACIÓN AL COMPRADOR
¡Locales comerciales con gran potencial!
Te presentamos una interesante oportunidad para adquirir en propiedad un conjunto de dos locales comerciales que conforman una única unidad funcional, situados en un edificio singular de uso comercial de tres plantas, ubicados en la localidad de La Bisbal d’Empordà, provincia de Girona.
Los locales se distribuyen entre planta baja y planta piso, ofreciendo una configuración versátil y con múltiples posibilidades de uso:
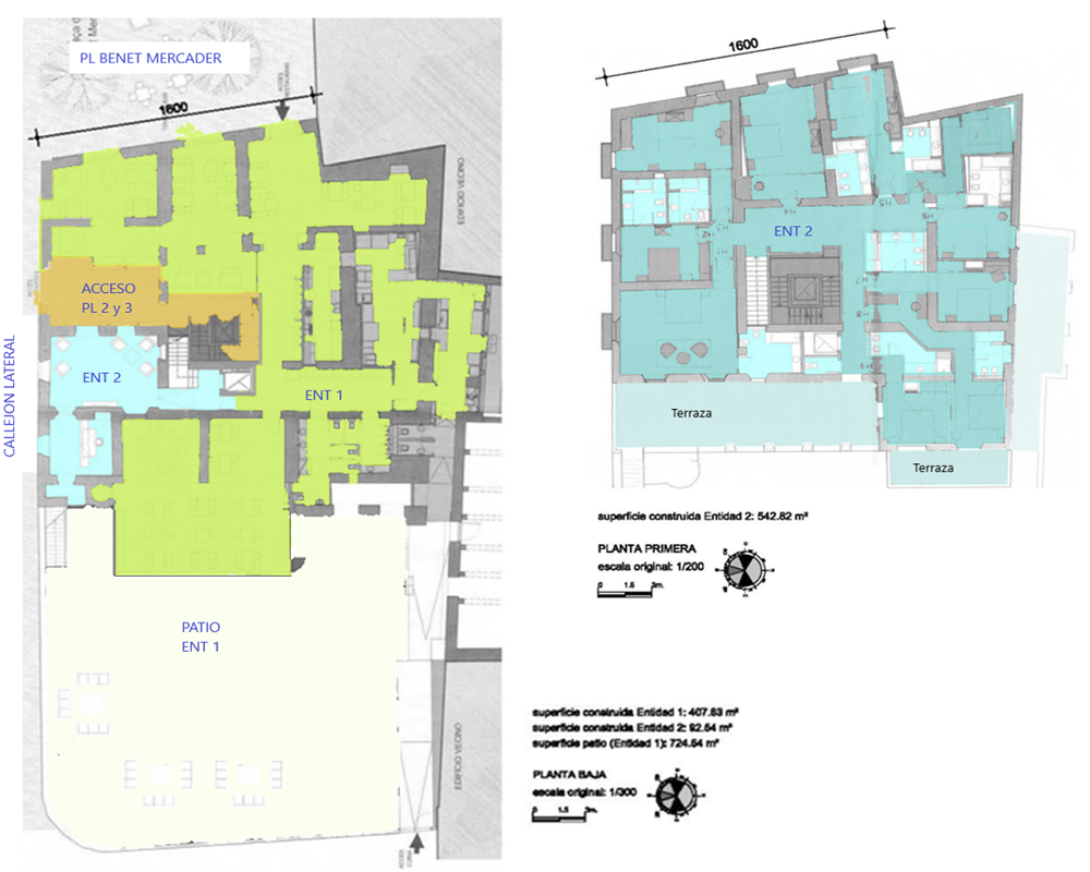
-El primer local se sitúa íntegramente en planta baja y dispone de patio trasero, un espacio exterior que aporta valor añadido y múltiples opciones de aprovechamiento. ( Sup. PB 408 m2 + Sup.Patio 724 m2). Cuota: 21,50%.
-El segundo local se desarrolla en planta baja y primera planta, permitiendo una organización más amplia del espacio, ideal para diferenciar zonas de atención al público, áreas privadas o estancias auxiliares. (Sup. PB 93 m2+ Sup. P1 543 m2). Cuota: 34%.
-Ref. Catastral: 3352902EG0435S0001WI.
El edificio cuenta con acceso a un jardín particular, lo que refuerza su atractivo para proyectos vinculados a la hostelería, restauración o uso hotelero. El inmueble estuvo destinado a restaurante, conocido como “Els Indians”, actualmente cerrado, y dispone además de terraza en planta baja.
Situado en una zona privilegiada de La Bisbal d’Empordà, el entorno combina viviendas residenciales, comercios y servicios, garantizando tránsito y visibilidad.
En cuanto a comunicaciones, La Bisbal d’Empordà está excelentemente conectada por carretera.

* Los precios de los inmuebles que se muestran en la página web, así como las reservas y las ventas de viviendas publicadas, pueden variar por motivos de actualización de los mismos con los proveedores durante un plazo de 48 a 72 horas.
La presente publicación tiene carácter meramente informativo, orientativo y no vinculante, por lo que no supone información contractual alguna, siendo su uso estrictamente comercial. Este anuncio puede contener errores, se muestra a título informativo de la información recibida, sin ser responsable la inmobiliaria de dichos errores.

Solicitud enviada

En breve el anunciante contactará contigo

TARONGERS, Bisbal d'Empordà (La), Girona

Viviendas relacionadas

Contacta con nosotros

Los datos de carácter personal que consten en la consulta serán tratados por PROYECTIZATE EN LA NUBE, S.L. e incorporados a la actividad de tratamiento CONTACTOS, cuya finalidad es atender tus solicitudes, peticiones o consultas recibidas desde la web, mediante correo electrónico o telefónico. Dar respuesta a tu solicitud y hacer un seguimiento posterior. La legitimación del tratamiento es tu consentimiento. Tus datos no serán cedidos a terceros. Tienes derecho a acceder, rectificar y suprimir tus datos, así como otros derechos como se explica en nuestra política de privacidad: https://www.adelopd.com/privacidad/proyectizate-en-la-nube-sl

Otros pisos en Girona

Otras búsquedas