Contacta

Solicitud enviada

204.000€

HORTÈNSIES Ref. 946126

  • 419 m²

Otros en venta en Riudarenes de 419 m²

Descuento de 36.000,00 € *

* Ya aplicado en el precio mostrado.
Precio antes del descuento: 240.000€

Superficie419 m²487 €/m²
Eficiencia energéticaEn tramite

NO COBRAMOS COMISIÓN DE INTERMEDIACIÓN AL COMPRADOR
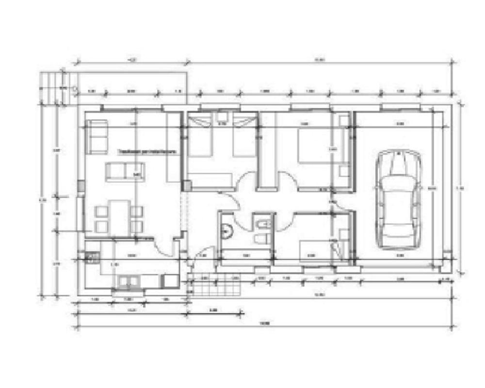
¡Excelente oportunidad de adquirir un conjunto de 3 viviendas unifamiliares aisladas en estado de construcción paralizada en las afueras de ciudad de Riudarenes!
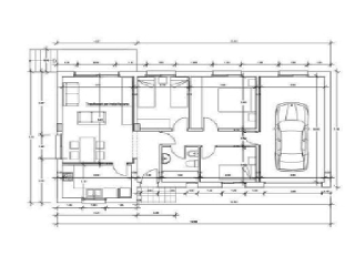
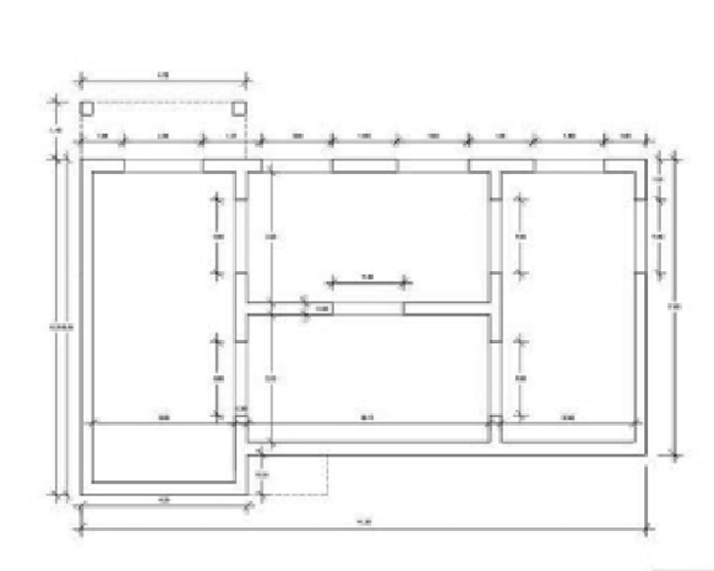
Estas cuidadosamente diseñadas y funcionales viviendas, se encuentran distribuidas entre planta baja y semisótano, están localizadas en las afueras de Riudarenes, Girona. Se encuentran en la fase final de construcción, con cimientos, estructura, albañilería y cubiertas ya realizadas, además de disponer de plaza de garaje para cada una.
Ubicadas en un entorno sereno y natural, estas casas ofrecen proximidad a todos los servicios esenciales. También cuentan con excelentes conexiones a través de las carreteras C-35 y C-63, facilitando así el acceso a toda la provincia.
A tan solo 15 minutos en coche desde el centro de Riudarenes y a tan solo media hora de las ciudades turísticas de Malgrat de Mar y Lloret de Mar.
No dejes pasar esta oportunidad, perfecta para finalizarla según tus gustos y preferencias, en una de las zonas mas lindas de la región, ya que se encuentra rodeada de naturaleza y tranquilidad.
El Inmueble se transmite no habiéndose finalizado las obras de construcción. Consúltenos por las condiciones especiales del mismo. Dicha situación ha sido especialmente tenida en cuenta en la fijación del precio.

* Los precios de los inmuebles que se muestran en la página web, así como las reservas y las ventas de viviendas publicadas, pueden variar por motivos de actualización de los mismos con los proveedores durante un plazo de 48 a 72 horas.
La presente publicación tiene carácter meramente informativo, orientativo y no vinculante, por lo que no supone información contractual alguna, siendo su uso estrictamente comercial. Este anuncio puede contener errores, se muestra a título informativo de la información recibida, sin ser responsable la inmobiliaria de dichos errores.

Solicitud enviada

En breve el anunciante contactará contigo

HORTÈNSIES, Riudarenes, Girona

Viviendas relacionadas

Contacta con nosotros

Los datos de carácter personal que consten en la consulta serán tratados por PROYECTIZATE EN LA NUBE, S.L. e incorporados a la actividad de tratamiento CONTACTOS, cuya finalidad es atender tus solicitudes, peticiones o consultas recibidas desde la web, mediante correo electrónico o telefónico. Dar respuesta a tu solicitud y hacer un seguimiento posterior. La legitimación del tratamiento es tu consentimiento. Tus datos no serán cedidos a terceros. Tienes derecho a acceder, rectificar y suprimir tus datos, así como otros derechos como se explica en nuestra política de privacidad: https://www.adelopd.com/privacidad/proyectizate-en-la-nube-sl

Otros pisos en Girona

Otras búsquedas