Contacta

Solicitud enviada

23.580€

Preixana Ref. 944412

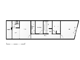
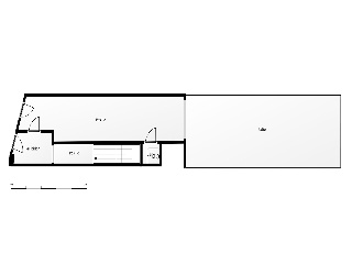
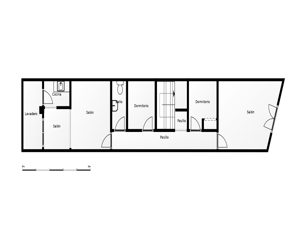
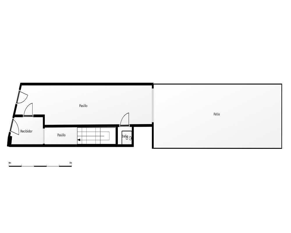
  • 144 m²
  • 3 hab.
  • 2 bañ.

Otros en venta en Bellpuig de 144 m²

Descuento de 2.620,00 € *

* Ya aplicado en el precio mostrado.
Precio antes del descuento: 26.200€

Dispone3 habitaciones2 baños
Superficie144 m²164 €/m²
Eficiencia energéticaEn tramite

NO COBRAMOS COMISIÓN DE INTERMEDIACIÓN AL COMPRADOR
¡Un proyecto con alma para transformar en hogar o inversión!
Esta vivienda a reformar totalmente se convierte en el lienzo ideal para diseñar desde cero un espacio funcional, actual y adaptado a las nuevas necesidades residenciales o de inversión.
Con una superficie generosa y distribución flexible, esta propiedad ofrece la posibilidad de crear una vivienda luminosa y acogedora, con estancias amplias y bien conectadas. Perfecta para familias que desean construir su hogar con carácter propio, o para inversores que buscan rentabilizar mediante alquiler o reventa en una localidad con demanda sostenida y buenas conexiones.
Ubicada en una zona tranquila y consolidada, la vivienda se encuentra a pocos pasos de servicios esenciales como colegios, supermercados, farmacias, centros médicos y zonas verdes. Además, Bellpuig dispone de una excelente red de transporte gracias a su estación de tren y su proximidad a la autovía A-2, que conecta con Lleida capital en menos de 30 minutos.
Bellpuig es una localidad que combina la calma de un entorno rural con la comodidad de tener todo a mano. Su patrimonio histórico, su entorno natural y su ambiente familiar la convierten en un lugar ideal tanto para residir como para invertir. Es, además, una zona con proyección urbanística y alta calidad de vida.
Esta vivienda, al estar completamente para reformar, ofrece una oportunidad única de revalorización a través de un proyecto de rehabilitación integral, aportando tu propio estilo, materiales y distribución.
¡Imagina, reforma y crea!

* Los precios de los inmuebles que se muestran en la página web, así como las reservas y las ventas de viviendas publicadas, pueden variar por motivos de actualización de los mismos con los proveedores durante un plazo de 48 a 72 horas.
La presente publicación tiene carácter meramente informativo, orientativo y no vinculante, por lo que no supone información contractual alguna, siendo su uso estrictamente comercial. Este anuncio puede contener errores, se muestra a título informativo de la información recibida, sin ser responsable la inmobiliaria de dichos errores.

Solicitud enviada

En breve el anunciante contactará contigo

Preixana, Bellpuig, Lleida

Viviendas relacionadas

Contacta con nosotros

Los datos de carácter personal que consten en la consulta serán tratados por PROYECTIZATE EN LA NUBE, S.L. e incorporados a la actividad de tratamiento CONTACTOS, cuya finalidad es atender tus solicitudes, peticiones o consultas recibidas desde la web, mediante correo electrónico o telefónico. Dar respuesta a tu solicitud y hacer un seguimiento posterior. La legitimación del tratamiento es tu consentimiento. Tus datos no serán cedidos a terceros. Tienes derecho a acceder, rectificar y suprimir tus datos, así como otros derechos como se explica en nuestra política de privacidad: https://www.adelopd.com/privacidad/proyectizate-en-la-nube-sl

Otros pisos en Lleida

Otras búsquedas