Contacta

Solicitud enviada

137.000€

BENITO GALCERAN Ref. 947902

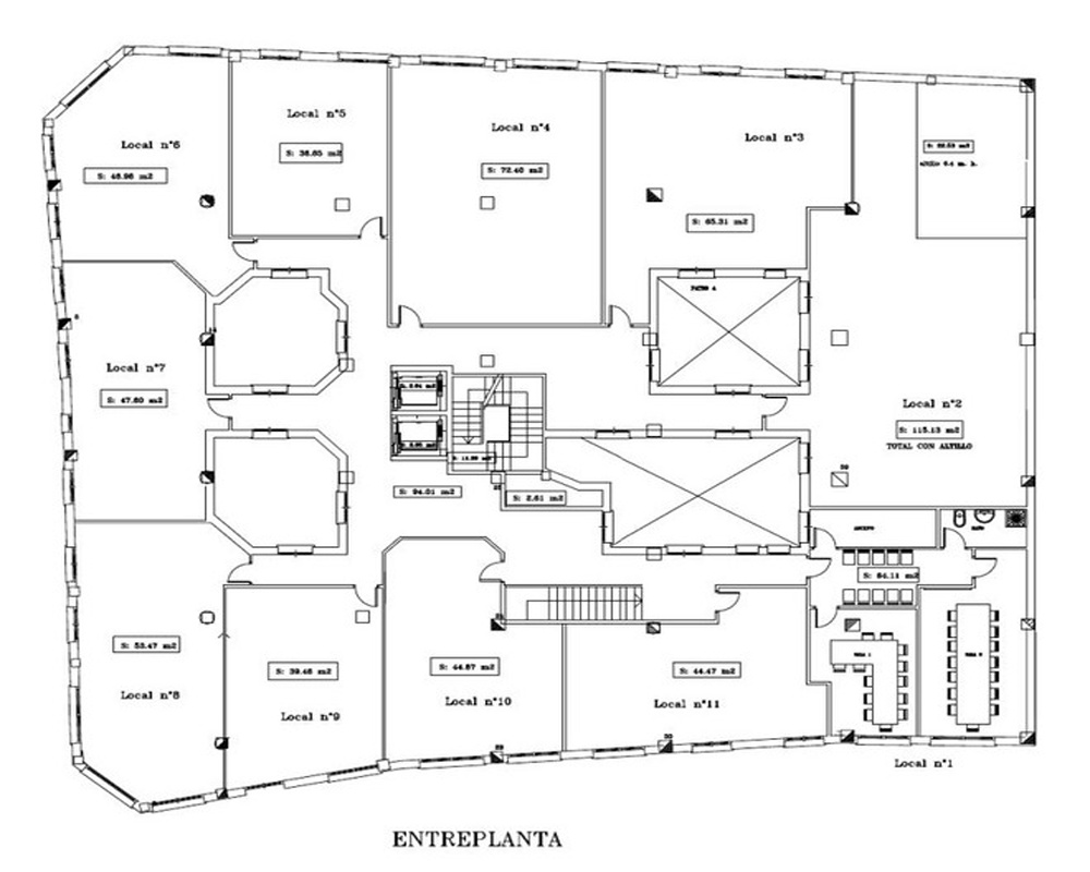
  • 790 m²

Otros en venta en Viveiro de 790 m²

Descuento de 15.000,00 € *

* Ya aplicado en el precio mostrado.
Precio antes del descuento: 152.000€

Superficie790 m²173 €/m²
Eficiencia energéticaEn tramite

NO COBRAMOS COMISIÓN DE INTERMEDIACIÓN AL COMPRADOR
Excelente oportunidad de invertir en este local comercial diáfano en bruto con una gran superficie, ubicado en el centro de la localidad de Viveiro, provincia de Lugo. El local se presenta diáfano, lo que te permitirá adaptarlo fácilmente a tus necesidades y preferencias. Cuenta con una distribución abierta que se adapta a distintos tipos de negocios, como tiendas, oficinas, salones de belleza, restaurantes y mucho más. Las posibilidades son infinitas.
Aprovecha las múltiples posibilidades de distribución, adecuación y reforma para configurar tu nuevo negocio en el local que te ofrecemos. Además , por su gran tránsito comercial, visibilidad desde la vía pública y cómodos accesos, lo convierten en perfecto e inigualable en la localidad.
Su acceso principal por calle de gran tránsito, la convierte en un activo privilegiado, ya que se encuentra en la zona norte de la ciudad, cercano a la estación de trenes Viveiro Apeadero. Es una calle donde se consiguen viviendas de diferentes alturas y estilos arquitectónicos, muchos comercios, tiendas, bares y restaurantes, lo que la convierte en una zona animada y concurrida.
Por lo tanto, el local comercial tiene cercanos todos los servicios, equipamientos y atractivos necesarios para una gran afluencia de clientes. Empieza ya tu idea de emprendimiento.
No lo dudes, invertir en el local que te ofrecemos será una apuesta segura.

* Los precios de los inmuebles que se muestran en la página web, así como las reservas y las ventas de viviendas publicadas, pueden variar por motivos de actualización de los mismos con los proveedores durante un plazo de 48 a 72 horas.
La presente publicación tiene carácter meramente informativo, orientativo y no vinculante, por lo que no supone información contractual alguna, siendo su uso estrictamente comercial. Este anuncio puede contener errores, se muestra a título informativo de la información recibida, sin ser responsable la inmobiliaria de dichos errores.

Solicitud enviada

En breve el anunciante contactará contigo

BENITO GALCERAN, Viveiro, Lugo

Viviendas relacionadas

Contacta con nosotros

Los datos de carácter personal que consten en la consulta serán tratados por PROYECTIZATE EN LA NUBE, S.L. e incorporados a la actividad de tratamiento CONTACTOS, cuya finalidad es atender tus solicitudes, peticiones o consultas recibidas desde la web, mediante correo electrónico o telefónico. Dar respuesta a tu solicitud y hacer un seguimiento posterior. La legitimación del tratamiento es tu consentimiento. Tus datos no serán cedidos a terceros. Tienes derecho a acceder, rectificar y suprimir tus datos, así como otros derechos como se explica en nuestra política de privacidad: https://www.adelopd.com/privacidad/proyectizate-en-la-nube-sl

Otros pisos en Lugo

Otras búsquedas