Contacta

Solicitud enviada

175.000€

LO LLANES POLIGONO Ref. 946123

  • 878 m²

Otros en venta en Málaga de 878 m²

Descuento de 44.000,00 € *

* Ya aplicado en el precio mostrado.
Precio antes del descuento: 219.000€

Superficie878 m²199 €/m²
Eficiencia energéticaEn tramite

NO COBRAMOS COMISIÓN DE INTERMEDIACIÓN AL COMPRADOR
¡Proyecto para desarrollar una residencia exclusiva en un entorno natural!
Excelente oportunidad de adquirir en propiedad esta vivienda en construcción de obra parada, ubicada en la localidad de Málaga, ideal para quienes buscan desarrollar un proyecto residencial.
El porcentaje de edificación ejecutada es del 34,31 %, lo que permite retomar la obra con flexibilidad y definir el resultado final según las necesidades del futuro propietario o del inversor.
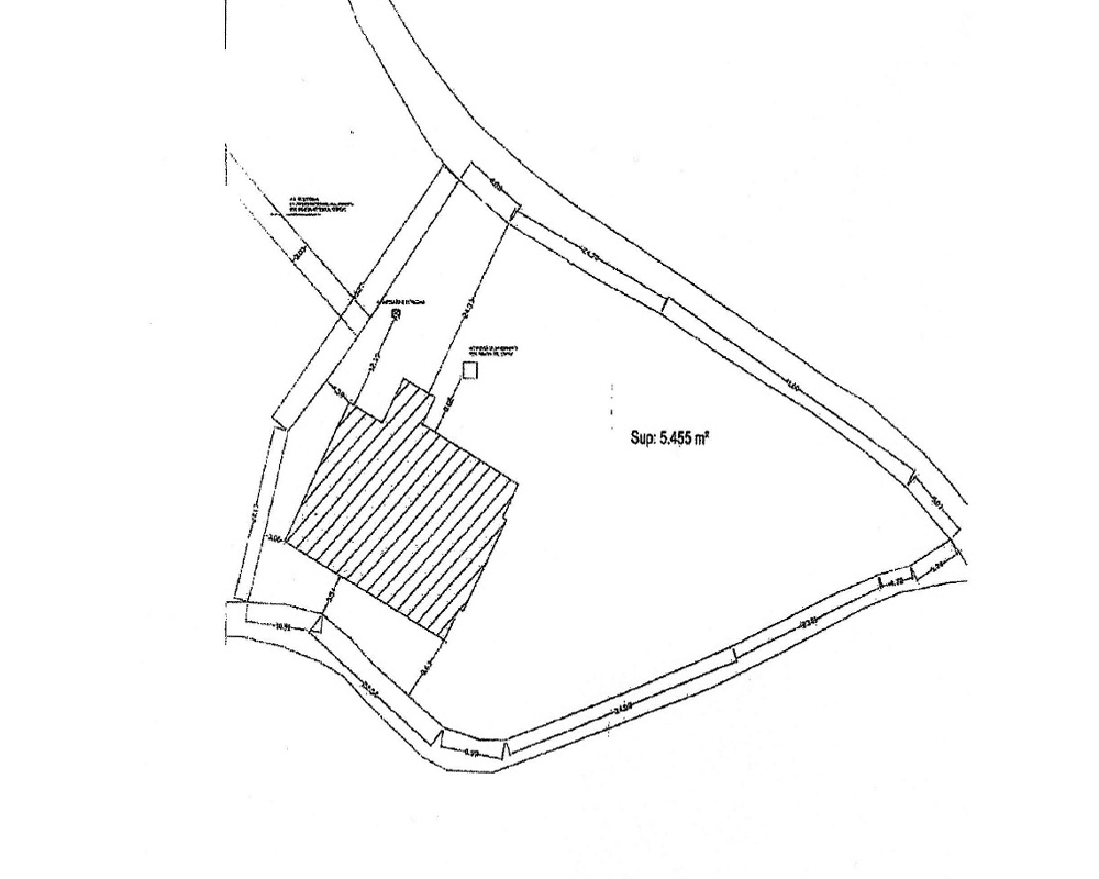
La vivienda se asienta sobre un suelo rústico diseminado, con un terreno de aproximadamente 5.450m², situado en las afueras de la ciudad, en las inmediaciones del Mirador de La Unidad, en un entorno natural privilegiado, rodeado de valles y con una marcada sensación de privacidad y calma.
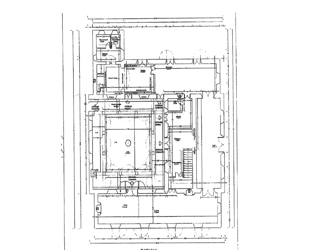
El proyecto contempla una vivienda de tres plantas amplias y diáfanas, concebidas para ofrecer espacios generosos y una distribución funcional, distribuyéndose en planta baja que consta de una galería porticada, cocina, alacena, despensas, comedor, aseos, lavabos y salón; la primera planta, consta de galería perimetral, escaleras, dormitorio, vestidor y baño; y la segunda planta, consta de galería perimetral, dos almacenes y dos desvanes. Se encuentra en una zona rural y tranquila, rodeado valles. Es un lugar ideal para aquellos que buscan un ambiente tranquilo y natural para vivir.
A pocos minutos en coche se accede a Málaga capital, donde se concentran supermercados, comercios, restauración, centros educativos, servicios sanitarios y una amplia oferta cultural y de ocio, lo que garantiza una combinación perfecta entre entorno rural y vida urbana.

* Los precios de los inmuebles que se muestran en la página web, así como las reservas y las ventas de viviendas publicadas, pueden variar por motivos de actualización de los mismos con los proveedores durante un plazo de 48 a 72 horas.
La presente publicación tiene carácter meramente informativo, orientativo y no vinculante, por lo que no supone información contractual alguna, siendo su uso estrictamente comercial. Este anuncio puede contener errores, se muestra a título informativo de la información recibida, sin ser responsable la inmobiliaria de dichos errores.

Solicitud enviada

En breve el anunciante contactará contigo

LO LLANES POLIGONO, Málaga, Malaga

Viviendas relacionadas

Contacta con nosotros

Los datos de carácter personal que consten en la consulta serán tratados por PROYECTIZATE EN LA NUBE, S.L. e incorporados a la actividad de tratamiento CONTACTOS, cuya finalidad es atender tus solicitudes, peticiones o consultas recibidas desde la web, mediante correo electrónico o telefónico. Dar respuesta a tu solicitud y hacer un seguimiento posterior. La legitimación del tratamiento es tu consentimiento. Tus datos no serán cedidos a terceros. Tienes derecho a acceder, rectificar y suprimir tus datos, así como otros derechos como se explica en nuestra política de privacidad: https://www.adelopd.com/privacidad/proyectizate-en-la-nube-sl

Otros pisos en Málaga

Otras búsquedas