Contacta

Solicitud enviada

10.000€

Mayor Ref. 956443

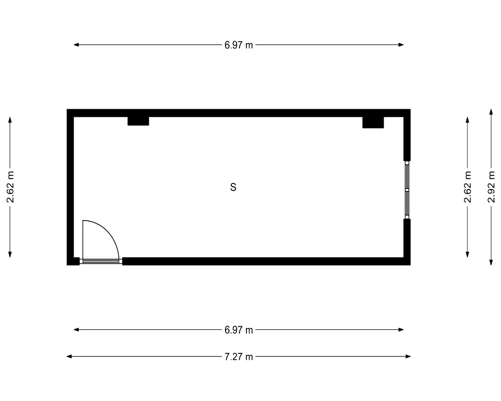
  • 21 m²
  • 1 bañ.

Otros en venta en Unión (la) de 21 m²

Dispone1 baño
Superficie21 m²476 €/m²
Eficiencia energéticaEn tramite

NO COBRAMOS COMISIÓN DE INTERMEDIACIÓN AL COMPRADOR
¡Ubicación estratégica para emprendedores e inversores!
Este local comercial/oficina en edificio residencial con una superficie de 21m² es una excelente oportunidad para autónomos, emprendedores o inversores que buscan un espacio accesible y funcional para su negocio en una zona con creciente actividad comercial, en la localidad de La Unión, provincia de Murcia.
Gracias a su ubicación estratégica y tamaño compacto pero eficiente, este local es perfecto para negocios de atención al público, oficinas, comercios minoristas o espacios de almacenamiento para empresas que necesiten un punto de distribución.
Este local ha sido diseñado para ofrecer comodidad y versatilidad, permitiendo diferentes opciones de distribución.
Sus características principales incluyen:
•Ideal para pequeños comercios, despacho profesional, servicios técnicos o almacén.
•Espacio diáfano y aprovechable, con posibilidad de adaptación según el tipo de actividad.
•Amplia fachada con visibilidad, lo que garantiza mayor atractivo para captar clientes.
•Fácil acceso y ubicación en una zona con alto tránsito peatonal y vehicular.
Este local se encuentra en una zona con fácil acceso a servicios y alta afluencia de público, destacando:
•Cercanía a supermercados, comercios y oficinas, asegurando un flujo constante de clientes potenciales.
•Buena comunicación por carretera y transporte público, facilitando el acceso tanto para clientes como para proveedores.
•Proximidad a zonas residenciales y administrativas, lo que lo convierte en un punto estratégico para negocios de proximidad.

* Los precios de los inmuebles que se muestran en la página web, así como las reservas y las ventas de viviendas publicadas, pueden variar por motivos de actualización de los mismos con los proveedores durante un plazo de 48 a 72 horas.
La presente publicación tiene carácter meramente informativo, orientativo y no vinculante, por lo que no supone información contractual alguna, siendo su uso estrictamente comercial. Este anuncio puede contener errores, se muestra a título informativo de la información recibida, sin ser responsable la inmobiliaria de dichos errores.

Solicitud enviada

En breve el anunciante contactará contigo

Mayor, Unión (La), Murcia

Viviendas relacionadas

Contacta con nosotros

Los datos de carácter personal que consten en la consulta serán tratados por PROYECTIZATE EN LA NUBE, S.L. e incorporados a la actividad de tratamiento CONTACTOS, cuya finalidad es atender tus solicitudes, peticiones o consultas recibidas desde la web, mediante correo electrónico o telefónico. Dar respuesta a tu solicitud y hacer un seguimiento posterior. La legitimación del tratamiento es tu consentimiento. Tus datos no serán cedidos a terceros. Tienes derecho a acceder, rectificar y suprimir tus datos, así como otros derechos como se explica en nuestra política de privacidad: https://www.adelopd.com/privacidad/proyectizate-en-la-nube-sl

Otros pisos en Murcia

Otras búsquedas