Contacta

Solicitud enviada

356.000€

Clemente Velasco Ref. 946918

  • 3080 m²

Otros en venta en Ciudad Rodrigo de 3080 m²

Descuento de 62.000,00 € *

* Ya aplicado en el precio mostrado.
Precio antes del descuento: 418.000€

Superficie3080 m²116 €/m²
Eficiencia energéticaEn tramite

NO COBRAMOS COMISIÓN DE INTERMEDIACIÓN AL COMPRADOR
¡Promoción de viviendas en obra parada con gran potencial!
Te presentamos esta promoción residencial en construcción de obra parada, con un grado de avance aproximado del 28%, ubicado en la localidad de Ciudad Rodrigo, provincia de Salamanca, ideal para promotores e inversores que buscan desarrollar un proyecto residencial.
Características principales:
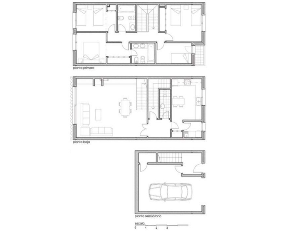
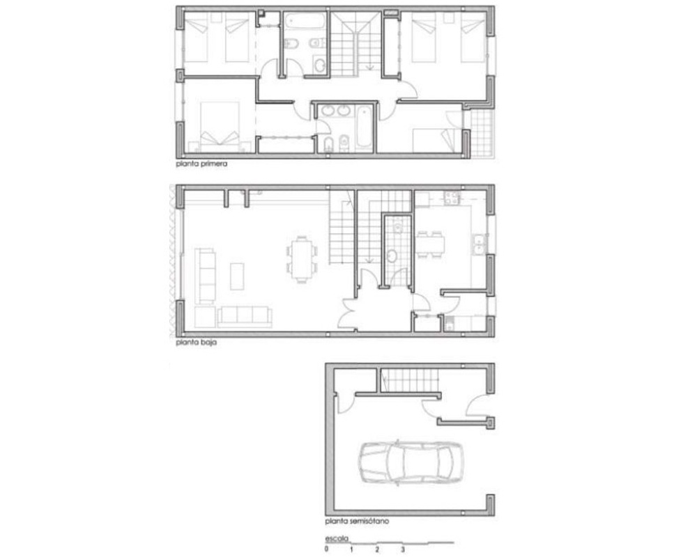
-Tipología: Viviendas adosadas.
-Número total de viviendas: 44 diseñadas para ofrecer espacios amplios y funcionales.
-Bloques: 7 bloques independientes.
-Estructura: Planta sótano comunitaria, planta baja, planta primera y plazas de garaje(44 plazas vinculadas a viviendas y 7 plazas adicionales no adscritas)
-Estado: Obra parada (avance aproximado del 28%)
-Licencia de obras: Junio de 2007
-Paralización definitiva: Año 2012
-Movimiento de tierras: finalizado
-Cimentación: ejecutada
-Saneamiento: prácticamente finalizado
-Estructura: aproximadamente 80% ejecutada
-Albañilería: ligeramente superior al 50%
-La promoción permite:
.Finalización del proyecto original
.Adaptación de calidades a demanda actual
.Comercialización como vivienda habitual o segunda residencia
Ciudad Rodrigo es una localidad con gran valor histórico y cultural, rodeada de naturaleza y bien comunicada. Ofrece todos los servicios necesarios: centros educativos, sanitarios, comercios y una excelente calidad de vida, lo que refuerza el atractivo del proyecto.
En definitiva, se trata de una promoción con gran potencial en Ciudad Rodrigo, ideal para retomar un proyecto avanzado, optimizar la inversión y desarrollar viviendas adosadas con alta demanda en el mercado local.

* Los precios de los inmuebles que se muestran en la página web, así como las reservas y las ventas de viviendas publicadas, pueden variar por motivos de actualización de los mismos con los proveedores durante un plazo de 48 a 72 horas.
La presente publicación tiene carácter meramente informativo, orientativo y no vinculante, por lo que no supone información contractual alguna, siendo su uso estrictamente comercial. Este anuncio puede contener errores, se muestra a título informativo de la información recibida, sin ser responsable la inmobiliaria de dichos errores.

Solicitud enviada

En breve el anunciante contactará contigo

Clemente Velasco, Ciudad Rodrigo, Salamanca

Viviendas relacionadas

Contacta con nosotros

Los datos de carácter personal que consten en la consulta serán tratados por PROYECTIZATE EN LA NUBE, S.L. e incorporados a la actividad de tratamiento CONTACTOS, cuya finalidad es atender tus solicitudes, peticiones o consultas recibidas desde la web, mediante correo electrónico o telefónico. Dar respuesta a tu solicitud y hacer un seguimiento posterior. La legitimación del tratamiento es tu consentimiento. Tus datos no serán cedidos a terceros. Tienes derecho a acceder, rectificar y suprimir tus datos, así como otros derechos como se explica en nuestra política de privacidad: https://www.adelopd.com/privacidad/proyectizate-en-la-nube-sl

Otros pisos en Salamanca

Otras búsquedas