Contacta

Solicitud enviada

321.000€

Valladolid Ref. 951142

  • 1106 m²

Otros en venta en Lastrilla (la) de 1106 m²

Descuento de 56.000,00 € *

* Ya aplicado en el precio mostrado.
Precio antes del descuento: 377.000€

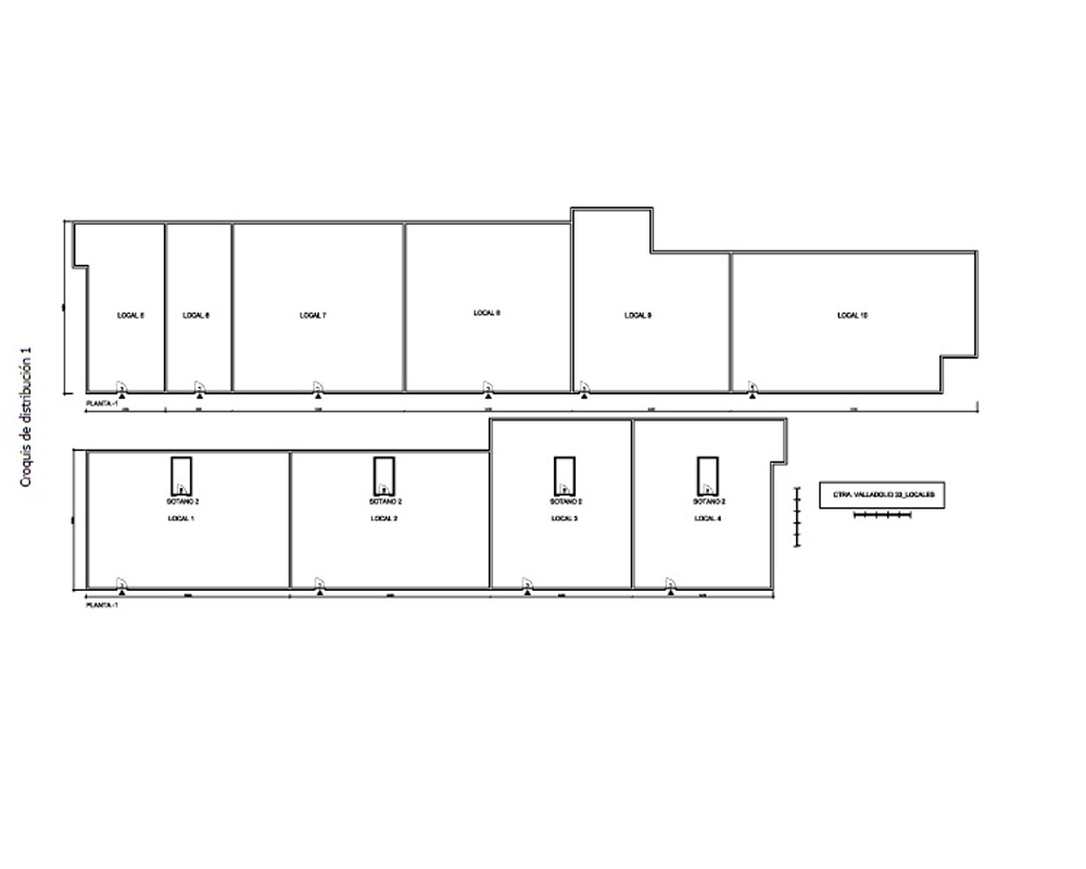
Superficie1106 m²290 €/m²
Eficiencia energéticaEn tramite

NO COBRAMOS COMISIÓN DE INTERMEDIACIÓN AL COMPRADOR
Ponemos a su disposición un conjunto de 6 locales a reformar situados en La Lastrilla, una localidad en plena expansión a tan solo unos minutos de la provincia de Segovia. Este local representa una oportunidad ideal tanto para inversores como para emprendedores que deseen desarrollar un proyecto comercial o empresarial en una zona residencial consolidada, con excelentes accesos y gran proyección de crecimiento.
Los locales, actualmente en estado a reformar, ofrecen una amplia superficie total que permite múltiples configuraciones según las necesidades del comprador. Pueden destinarse a uso conjunto —ideal para un negocio de gran formato o un complejo de oficinas.
La Lastrilla, perteneciente al área metropolitana de Segovia, combina la tranquilidad de una zona residencial con la comodidad de disponer de todos los servicios esenciales: supermercados, centros educativos, instalaciones deportivas, farmacias y comercios locales. Además, su cercanía a Segovia, a menos de 5 minutos en coche, permite acceder fácilmente a una oferta más amplia de ocio, restauración y servicios especializados.
En cuanto a comunicaciones, el municipio cuenta con excelentes conexiones por carretera a través de la A-601 y la AP-61, que enlazan directamente con Segovia y Madrid, lo que refuerza su atractivo tanto para residentes como para negocios que buscan buena visibilidad y accesibilidad.

* Los precios de los inmuebles que se muestran en la página web, así como las reservas y las ventas de viviendas publicadas, pueden variar por motivos de actualización de los mismos con los proveedores durante un plazo de 48 a 72 horas.
La presente publicación tiene carácter meramente informativo, orientativo y no vinculante, por lo que no supone información contractual alguna, siendo su uso estrictamente comercial. Este anuncio puede contener errores, se muestra a título informativo de la información recibida, sin ser responsable la inmobiliaria de dichos errores.

Solicitud enviada

En breve el anunciante contactará contigo

Valladolid, Lastrilla (La), Segovia

Viviendas relacionadas

Contacta con nosotros

Los datos de carácter personal que consten en la consulta serán tratados por PROYECTIZATE EN LA NUBE, S.L. e incorporados a la actividad de tratamiento CONTACTOS, cuya finalidad es atender tus solicitudes, peticiones o consultas recibidas desde la web, mediante correo electrónico o telefónico. Dar respuesta a tu solicitud y hacer un seguimiento posterior. La legitimación del tratamiento es tu consentimiento. Tus datos no serán cedidos a terceros. Tienes derecho a acceder, rectificar y suprimir tus datos, así como otros derechos como se explica en nuestra política de privacidad: https://www.adelopd.com/privacidad/proyectizate-en-la-nube-sl

Otros pisos en Segovia

Otras búsquedas