Contacta

Solicitud enviada

587.500€

Calle Siete Picos Ref. 939687

  • 1058 m²
  • 2 bañ.

Otros en venta en Segovia de 1058 m²

Dispone2 baños
Superficie1058 m²555 €/m²
Eficiencia energéticaEn tramite

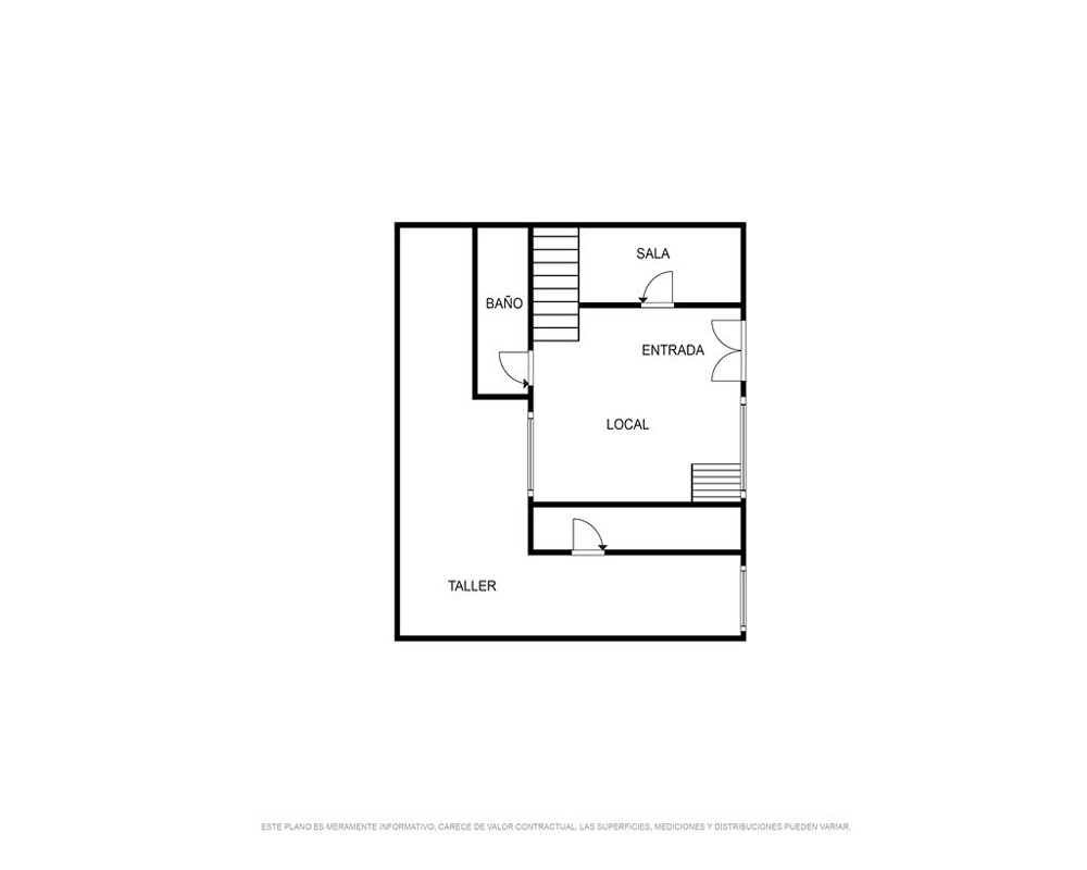
Nave industrial situada en el municipio de Segovia, capital de provincia. Se trata de un lote de 2 naves adosadas de 1922 m2 de superficie construida, que son 1539 m2 útiles, y se distribuye en una sala principal diáfana de doble altura, aseos y una doble altura donde se encuentran las oficinas y almacén. Su carácter polivalente la hace susceptible de utilización para distintas actividades empresariales, adaptándose a las necesidades de diferentes sectores industriales. El activo se sitúa en una zona industrial consolidada, con buenas conexiones por carretera, destacando el acceso a la autovía A-601 que conecta Segovia con la A-6 y la AP-6, facilitando la comunicación con Madrid y otras provincias cercanas. En cuanto al transporte público, la ciudad de Segovia cuenta con una red de autobuses urbanos que conectan el polígono industrial con el centro de la ciudad y otras áreas, además de la estación de tren de Segovia-Guiomar, que ofrece servicios de alta velocidad (AVE) y trenes regionales, facilitando el acceso rápido a Madrid y Valladolid. El aeropuerto más cercano es el Aeropuerto Adolfo Suárez Madrid-Barajas, situado a aproximadamente 90 km. El Polígono Industrial El Cerro dispone de todas las infraestructuras necesarias para el desarrollo de actividades industriales, con servicios básicos como suministro eléctrico, agua y alumbrado público. En los alrededores se encuentran diversas empresas y negocios industriales que conforman un entorno empresarial dinámico. Además, la ciudad de Segovia ofrece servicios importantes como hospitales (Hospital General de Segovia), centros de salud, supermercados, restaurantes y oficinas bancarias, garantizando un entorno con todos los servicios necesarios para trabajadores y empresas. Con nuestros servicios podrá encontrar la nave industrial que necesita y asegurar su inversión con el mejor de los asesoramientos especializados. Empiece ahora mismo pidiendo más información. Un responsable cercano a usted le atenderá personalmente.

* Los precios de los inmuebles que se muestran en la página web, así como las reservas y las ventas de viviendas publicadas, pueden variar por motivos de actualización de los mismos con los proveedores durante un plazo de 48 a 72 horas.
La presente publicación tiene carácter meramente informativo, orientativo y no vinculante, por lo que no supone información contractual alguna, siendo su uso estrictamente comercial. Este anuncio puede contener errores, se muestra a título informativo de la información recibida, sin ser responsable la inmobiliaria de dichos errores.

Solicitud enviada

En breve el anunciante contactará contigo

Calle Siete Picos, Segovia, Segovia

Viviendas relacionadas

Contacta con nosotros

Los datos de carácter personal que consten en la consulta serán tratados por PROYECTIZATE EN LA NUBE, S.L. e incorporados a la actividad de tratamiento CONTACTOS, cuya finalidad es atender tus solicitudes, peticiones o consultas recibidas desde la web, mediante correo electrónico o telefónico. Dar respuesta a tu solicitud y hacer un seguimiento posterior. La legitimación del tratamiento es tu consentimiento. Tus datos no serán cedidos a terceros. Tienes derecho a acceder, rectificar y suprimir tus datos, así como otros derechos como se explica en nuestra política de privacidad: https://www.adelopd.com/privacidad/proyectizate-en-la-nube-sl

Otros pisos en Segovia

Otras búsquedas