Contacta

Solicitud enviada

18.000€

Mayor Ref. 944426

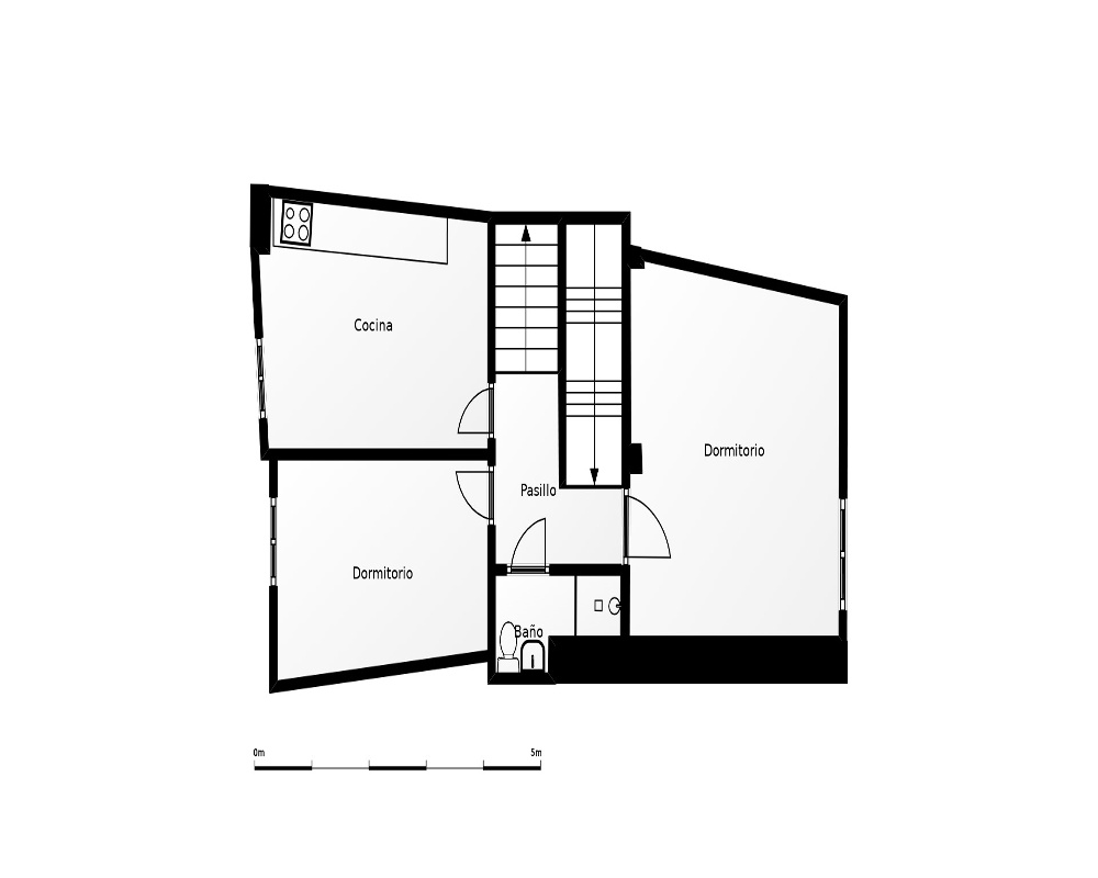
  • 216 m²
  • 4 hab.
  • 1 bañ.

Otros en venta en Uruñuela de 216 m²

Descuento de 2.000,00 € *

* Ya aplicado en el precio mostrado.
Precio antes del descuento: 20.000€

Dispone4 habitaciones1 baño
Superficie216 m²83 €/m²
Eficiencia energéticaEn tramite

NO COBRAMOS COMISIÓN DE INTERMEDIACIÓN AL COMPRADOR
¡Gran potencial en una ubicación privilegiada!
Esta vivienda que consta de tres plantas, ubicado en la localidad de Uruñuela, provincia de La Rioja, es una excelente oportunidad para quienes desean personalizar su hogar o invertir en una propiedad con gran potencial de revalorización.
Ubicada en un entorno sereno, pero con fácil acceso a servicios esenciales y ciudades cercanas como Logroño y Nájera, esta propiedad es perfecta para quienes buscan espacio, tranquilidad y la posibilidad de crear un hogar único.
Gracias a su estructura sólida y su gran superficie, esta vivienda ofrece infinitas posibilidades de redistribución para adaptarla a las necesidades actuales:
•Salón-comedor espacioso y luminoso, ideal para diseñar un ambiente abierto y acogedor.
•Cocina independiente con opción de modernización, perfecta para optimizar su funcionalidad y almacenamiento.
•Cuatro dormitorios de buen tamaño, ideales para familias, despacho o espacios polivalentes.
•Un baño completo, con posibilidad de ampliación o modernización.
•Espacios adicionales, que pueden utilizarse como trastero, bodega o incluso para ampliar las estancias principales.
Uruñuela es un destino en crecimiento, con una excelente calidad de vida y un entorno natural y cultural que lo convierten en una opción atractiva tanto para residencia habitual como para inversión en el sector turístico.
¡Descubre el potencial de esta vivienda y hazla tuya!

* Los precios de los inmuebles que se muestran en la página web, así como las reservas y las ventas de viviendas publicadas, pueden variar por motivos de actualización de los mismos con los proveedores durante un plazo de 48 a 72 horas.
La presente publicación tiene carácter meramente informativo, orientativo y no vinculante, por lo que no supone información contractual alguna, siendo su uso estrictamente comercial. Este anuncio puede contener errores, se muestra a título informativo de la información recibida, sin ser responsable la inmobiliaria de dichos errores.

Solicitud enviada

En breve el anunciante contactará contigo

Mayor, Uruñuela, La Rioja

Viviendas relacionadas

Contacta con nosotros

Los datos de carácter personal que consten en la consulta serán tratados por PROYECTIZATE EN LA NUBE, S.L. e incorporados a la actividad de tratamiento CONTACTOS, cuya finalidad es atender tus solicitudes, peticiones o consultas recibidas desde la web, mediante correo electrónico o telefónico. Dar respuesta a tu solicitud y hacer un seguimiento posterior. La legitimación del tratamiento es tu consentimiento. Tus datos no serán cedidos a terceros. Tienes derecho a acceder, rectificar y suprimir tus datos, así como otros derechos como se explica en nuestra política de privacidad: https://www.adelopd.com/privacidad/proyectizate-en-la-nube-sl

Otros pisos en Uruñuela

Otras búsquedas