Contacta

Solicitud enviada

116.840€

NUEVA APERTURA Ref. 946148

  • 2956 m²

Otros en venta en Villamediana De Iregua de 2956 m²

Descuento de 12.910,00 € *

* Ya aplicado en el precio mostrado.
Precio antes del descuento: 129.750€

Superficie2956 m²40 €/m²
Eficiencia energéticaEn tramite

NO COBRAMOS COMISIÓN DE INTERMEDIACIÓN AL COMPRADOR
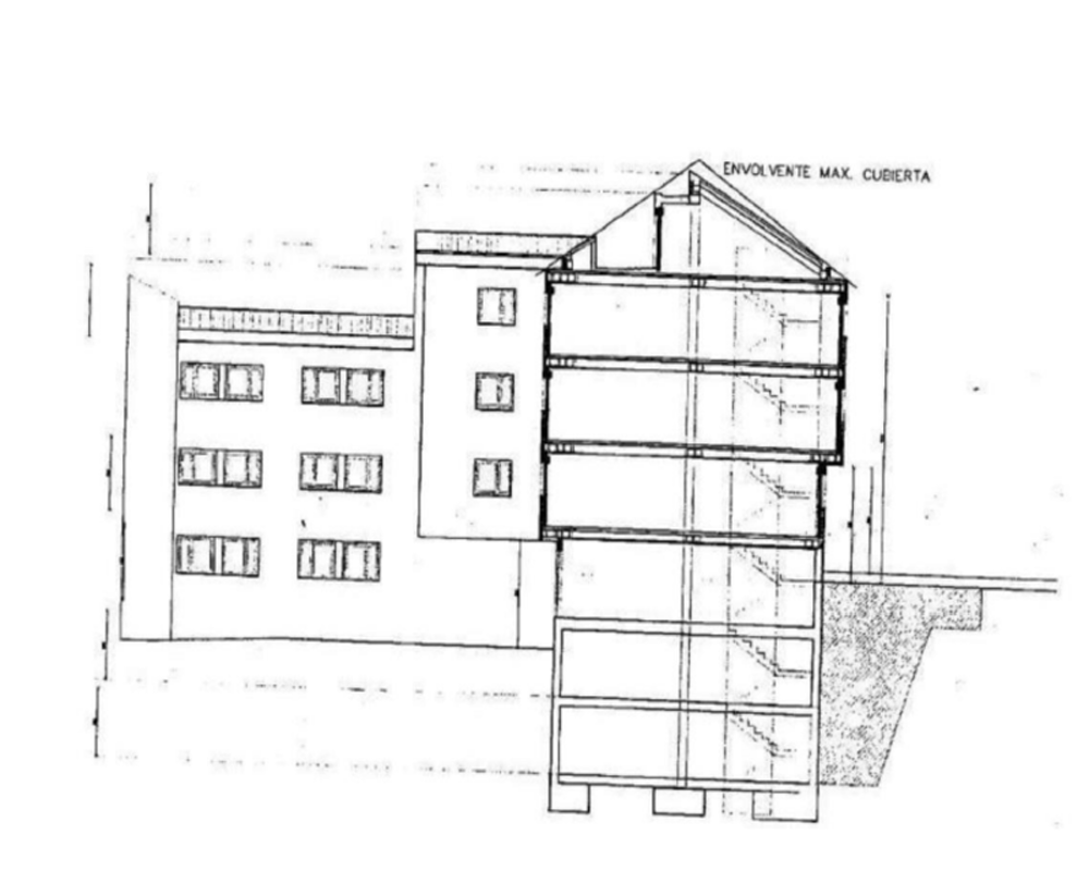
Excelente oportunidad de adquirir en propiedad esta promoción ( en estado de obra parada) de viviendas, garajes y trasteros ; ubicada en la localidad de Villamediana de Iregua, provincia de La Rioja.
Referencia catastral: 8176448WM4987N0001XR .
No dejes pasar esta oportunidad de inversión, ya que se trata de una promoción con una buena situación por su cercanía a Logroño y sus buenas comunicaciones.
Se encuentra situada en el municipio de Villamediana de Iregua, provincia de La Rioja. Zona tranquila y con locales comerciales en los bajos. Muy cercana al polideportivo, el Ayuntamiento, a un taller de coches, una clínica veterinaria, la guardia civil, una farmacia, el centro médico, banco, cafeterías, restaurante y hostales. Cuenta con atracciones turísticas a 5 km como Aqualar, el Parque De Iregua, el Museo Casa De La Ciencia, el Paseo De Espolón, bodegas franco-españolas y el mercado de abastos San Blas. Cuenta con acceso por la carretera LR-250 y LR-259.
Por lo tanto la promoción a desarrollar disfrutará de un entorno tranquilo y natural, pero sin renunciar a todos los servicios, equipamientos y atractivos necesarios para una gran calidad de vida. Sus accesos, comunicaciones y transportes harán que tengas todo a tu alcance.
No lo dudes, invertir en el inmueble que te ofrecemos será una apuesta segura.
El Inmueble se transmite no habiéndose finalizado las obras de construcción. Consúltenos por las condiciones especiales del mismo. Dicha situación ha sido especialmente tenida en cuenta en la fijación del precio.

* Los precios de los inmuebles que se muestran en la página web, así como las reservas y las ventas de viviendas publicadas, pueden variar por motivos de actualización de los mismos con los proveedores durante un plazo de 48 a 72 horas.
La presente publicación tiene carácter meramente informativo, orientativo y no vinculante, por lo que no supone información contractual alguna, siendo su uso estrictamente comercial. Este anuncio puede contener errores, se muestra a título informativo de la información recibida, sin ser responsable la inmobiliaria de dichos errores.

Solicitud enviada

En breve el anunciante contactará contigo

NUEVA APERTURA, Villamediana de Iregua, La Rioja

Viviendas relacionadas

Contacta con nosotros

Los datos de carácter personal que consten en la consulta serán tratados por PROYECTIZATE EN LA NUBE, S.L. e incorporados a la actividad de tratamiento CONTACTOS, cuya finalidad es atender tus solicitudes, peticiones o consultas recibidas desde la web, mediante correo electrónico o telefónico. Dar respuesta a tu solicitud y hacer un seguimiento posterior. La legitimación del tratamiento es tu consentimiento. Tus datos no serán cedidos a terceros. Tienes derecho a acceder, rectificar y suprimir tus datos, así como otros derechos como se explica en nuestra política de privacidad: https://www.adelopd.com/privacidad/proyectizate-en-la-nube-sl

Otros pisos en Villamediana de Iregua

Otras búsquedas