Contacta

Solicitud enviada

158.000€

Avenida de la Guardia Civil Ref. 946914

  • 1221 m²

Otros en venta en Manganeses De La Lampreana de 1221 m²

Descuento de 28.000,00 € *

* Ya aplicado en el precio mostrado.
Precio antes del descuento: 186.000€

Superficie1221 m²129 €/m²
Eficiencia energéticaEn tramite

NO COBRAMOS COMISIÓN DE INTERMEDIACIÓN AL COMPRADOR
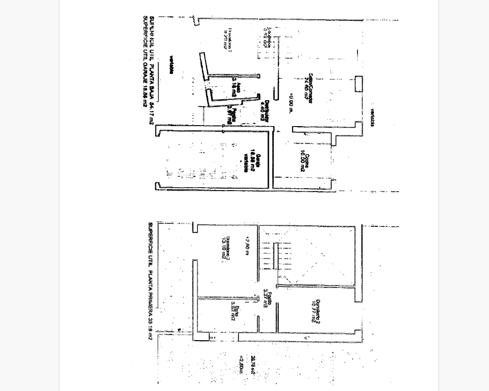
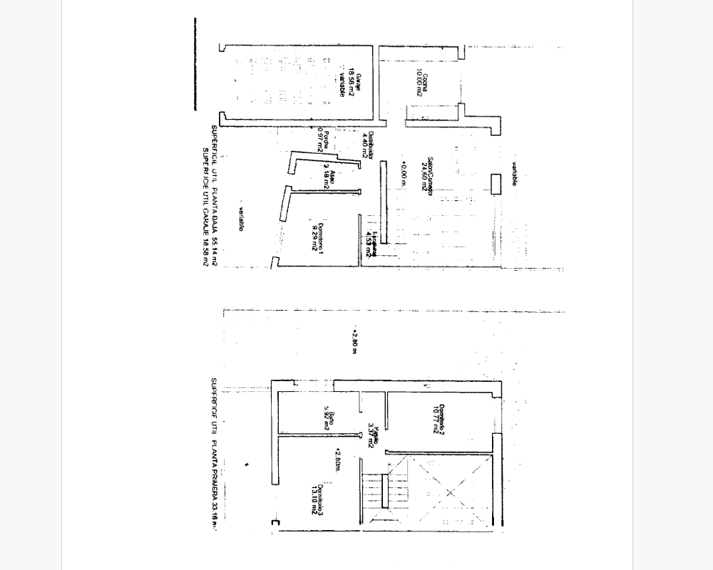
CONSTRUCCIÓN OBRA PARADA: Gran oportunidad de adquirir este conjunto de 6 viviendas pendientes de acondicionar ubicadas en la localidad de Zamora.
Un proyecto de construcción con un porcentaje aproximado de obra realizada del 82% que ha sido interrumpido y se encuentra en un estado de inactividad, una ubicación privilegiada que ya cuenta con una gran parte de la infraestructura construida con mucho potencial para reanudar la obra y completarla con un enfoque renovado.
- Referencia Catastral: 49121A001050580001QF
- Superficie parcela: 1.221,39 m²
- Superficie construida: 797,38 m²
En una zona inmejorable a orillas del río Esla, en un entorno tranquilo, muy bien comunicado por carretera como la N-630, A-66 y carreteras interurbanas, lo que conecta con otras ciudades importantes de la región, como Zaragoza, León o Valladolid. La población se encuentra rodeada de colinas y paisajes pintorescos. Zamora cuenta con un impresionante patrimonio arquitectónico, con más de veinte iglesias románicas, como la Catedral de Zamora, considerada una de las joyas del románico español. Además, la ciudad cuenta con un casco antiguo bien conservado, con calles empedradas, plazas encantadoras y edificios históricos. El transporte público en Zamora incluye una red de autobuses urbanos que cubre toda la ciudad y sus alrededores. Esto brinda a los residentes, opciones de movilidad convenientes y accesibles. Dispone de todos los servicios públicos o privados necesarios como pequeño comercio de proximidad, supermercados, farmacias y gran oferta en restauración.

* Los precios de los inmuebles que se muestran en la página web, así como las reservas y las ventas de viviendas publicadas, pueden variar por motivos de actualización de los mismos con los proveedores durante un plazo de 48 a 72 horas.
La presente publicación tiene carácter meramente informativo, orientativo y no vinculante, por lo que no supone información contractual alguna, siendo su uso estrictamente comercial. Este anuncio puede contener errores, se muestra a título informativo de la información recibida, sin ser responsable la inmobiliaria de dichos errores.

Solicitud enviada

En breve el anunciante contactará contigo

Avenida de la Guardia Civil, Manganeses de la Lampreana, Zamora

Viviendas relacionadas

Contacta con nosotros

Los datos de carácter personal que consten en la consulta serán tratados por PROYECTIZATE EN LA NUBE, S.L. e incorporados a la actividad de tratamiento CONTACTOS, cuya finalidad es atender tus solicitudes, peticiones o consultas recibidas desde la web, mediante correo electrónico o telefónico. Dar respuesta a tu solicitud y hacer un seguimiento posterior. La legitimación del tratamiento es tu consentimiento. Tus datos no serán cedidos a terceros. Tienes derecho a acceder, rectificar y suprimir tus datos, así como otros derechos como se explica en nuestra política de privacidad: https://www.adelopd.com/privacidad/proyectizate-en-la-nube-sl

Otros pisos en Zamora

Otras búsquedas