Contacta

Solicitud enviada

37.200€

Plaza (La) Ref. 940521

  • 173 m²
  • 5 hab.
  • 1 bañ.

Otros en venta en Zarratón de 173 m²

Dispone5 habitaciones1 baño
Superficie173 m²215 €/m²
Eficiencia energéticaEn tramite

NO COBRAMOS COMISIÓN DE INTERMEDIACIÓN AL COMPRADOR
Estupenda oportunidad para adquirir esta casa de pueblo para reformar, en el municipio de Zarratón provincia La Rioja, muy próximo a Haro.
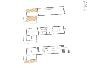
Esta vivienda luminosa y acogedora, con una distribución óptima que incorpora amplios ventanales para una entrada generosa de luz natural, creando una sensación de amplitud y calidez en cada uno de sus espacios y habitaciones, tiene una superficie de de 173m² de vivienda distribuida en tres plantas y está para rehabilitar.
El tejado está en buen estado y planta primera reformada.

Situada en la plaza de la localidad, tiene a su alcance todos los servicios necesarios a la vez que está bien comunicada.
Zarratón, en La Rioja, dispone de un consultorio médico que ofrece atención primaria a sus vecinos. En educación, cuenta con un colegio de infantil y primaria, mientras que los centros de secundaria se encuentran en localidades cercanas. El comercio se basa en pequeñas tiendas y servicios locales que cubren las necesidades diarias. Sus ventajas incluyen un entorno tranquilo, rodeado de viñedos y naturaleza, con una alta calidad de vida. Las conexiones terrestres se facilitan mediante carreteras que lo comunican con Haro y otros municipios, permitiendo el acceso a servicios adicionales y transporte interurbano.

* Los precios de los inmuebles que se muestran en la página web, así como las reservas y las ventas de viviendas publicadas, pueden variar por motivos de actualización de los mismos con los proveedores durante un plazo de 48 a 72 horas.
La presente publicación tiene carácter meramente informativo, orientativo y no vinculante, por lo que no supone información contractual alguna, siendo su uso estrictamente comercial. Este anuncio puede contener errores, se muestra a título informativo de la información recibida, sin ser responsable la inmobiliaria de dichos errores.

Solicitud enviada

En breve el anunciante contactará contigo

Plaza (La), Zarratón, La Rioja

Viviendas relacionadas

Cidamón, La Rioja
Piso 243 m², 3 hab, Segunda mano, Trastero

Cidamón, La Rioja
Piso 240 m², Calefacción

Casalarreina, La Rioja
Piso 88 m², 1 hab, Terraza, Calefacción

Contacta con nosotros

Los datos de carácter personal que consten en la consulta serán tratados por PROYECTIZATE EN LA NUBE, S.L. e incorporados a la actividad de tratamiento CONTACTOS, cuya finalidad es atender tus solicitudes, peticiones o consultas recibidas desde la web, mediante correo electrónico o telefónico. Dar respuesta a tu solicitud y hacer un seguimiento posterior. La legitimación del tratamiento es tu consentimiento. Tus datos no serán cedidos a terceros. Tienes derecho a acceder, rectificar y suprimir tus datos, así como otros derechos como se explica en nuestra política de privacidad: https://www.adelopd.com/privacidad/proyectizate-en-la-nube-sl

Otros pisos en Zarratón

Otras búsquedas