Contacta

Solicitud enviada

135.000€

PP Ref. 948025

    Otros en venta en Ávila

    Descuento de 15.000,00 € *

    * Ya aplicado en el precio mostrado.
    Precio antes del descuento: 150.000€

    Eficiencia energéticaEn tramite

    NO COBRAMOS COMISIÓN DE INTERMEDIACIÓN AL COMPRADOR
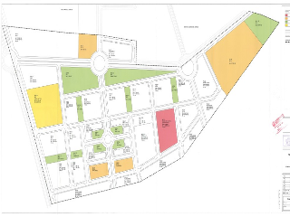
    Excelente oportunidad de adquirir este suelo urbano residencial ubicado en la localidad de Ávila.
    Muy bien comunicado al sur de la localidad con buenas conexiones por carretera por la N-403 y carreteras interurbanas. La ciudad se encuentra cerca de la autovía A-6, que conecta Madrid con Galicia, lo que facilita los desplazamientos hacia otras ciudades de la región y del país. Además, la ciudad cuenta con una estación de tren que ofrece conexiones con Madrid, Salamanca, Valladolid y otras ciudades cercanas. Se encuentra a pocos metros del río Adaja, se encuentra en el centro de la ciudad, lo que permite acceder fácilmente a los principales lugares de interés turístico, así como a una amplia gama de servicios y comodidades. Ávila cuenta con una variedad de tiendas, restaurantes, bares, supermercados y otros establecimientos comerciales, que se distribuyen por el casco antiguo y las áreas circundantes. Dispone de todos los servicios públicos o privados necesarios como alumbrado, calles asfaltadas de reciente construcción.
    La posesión de un suelo urbanizable otorga al propietario facultades, deberes y cargas basadas en las leyes urbanísticas. El cumplimiento de las mismas previene de sanciones, multas y facilita el camino para ser partícipe en un nuevo plan de urbanización. En todo caso, siempre es recomendable consultar con la Administración las ordenaciones territoriales.
    CARACTERÍSTICAS URBANÍSTICAS:
    - Edificabilidad: 94.126,00m²
    - Número de viviendas: 1.311ud.
    - Referencia Catastral: 7699502UK5979N0001TD.

    * Los precios de los inmuebles que se muestran en la página web, así como las reservas y las ventas de viviendas publicadas, pueden variar por motivos de actualización de los mismos con los proveedores durante un plazo de 48 a 72 horas.
    La presente publicación tiene carácter meramente informativo, orientativo y no vinculante, por lo que no supone información contractual alguna, siendo su uso estrictamente comercial. Este anuncio puede contener errores, se muestra a título informativo de la información recibida, sin ser responsable la inmobiliaria de dichos errores.

    Solicitud enviada

    En breve el anunciante contactará contigo

    PP, Ávila, Avila

    Viviendas relacionadas

    Contacta con nosotros

    Los datos de carácter personal que consten en la consulta serán tratados por PROYECTIZATE EN LA NUBE, S.L. e incorporados a la actividad de tratamiento CONTACTOS, cuya finalidad es atender tus solicitudes, peticiones o consultas recibidas desde la web, mediante correo electrónico o telefónico. Dar respuesta a tu solicitud y hacer un seguimiento posterior. La legitimación del tratamiento es tu consentimiento. Tus datos no serán cedidos a terceros. Tienes derecho a acceder, rectificar y suprimir tus datos, así como otros derechos como se explica en nuestra política de privacidad: https://www.adelopd.com/privacidad/proyectizate-en-la-nube-sl

    Otros pisos en Ávila

    Otras búsquedas