Contacta

Solicitud enviada

218.000€

EMPEDRADA Ref. 958887

  • 627 m²

Otros en venta en Arenas De San Pedro de 627 m²

Superficie627 m²348 €/m²
Eficiencia energéticaEn tramite

NO COBRAMOS COMISIÓN DE INTERMEDIACIÓN AL COMPRADOR
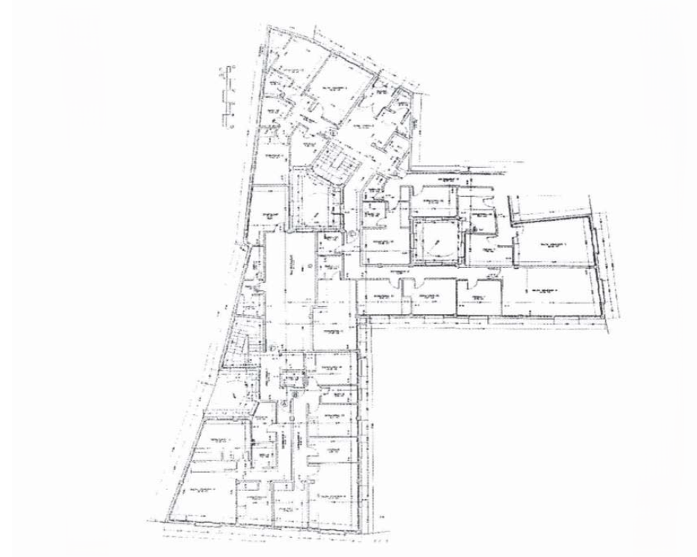
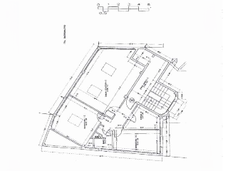
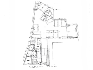
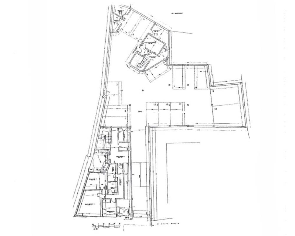
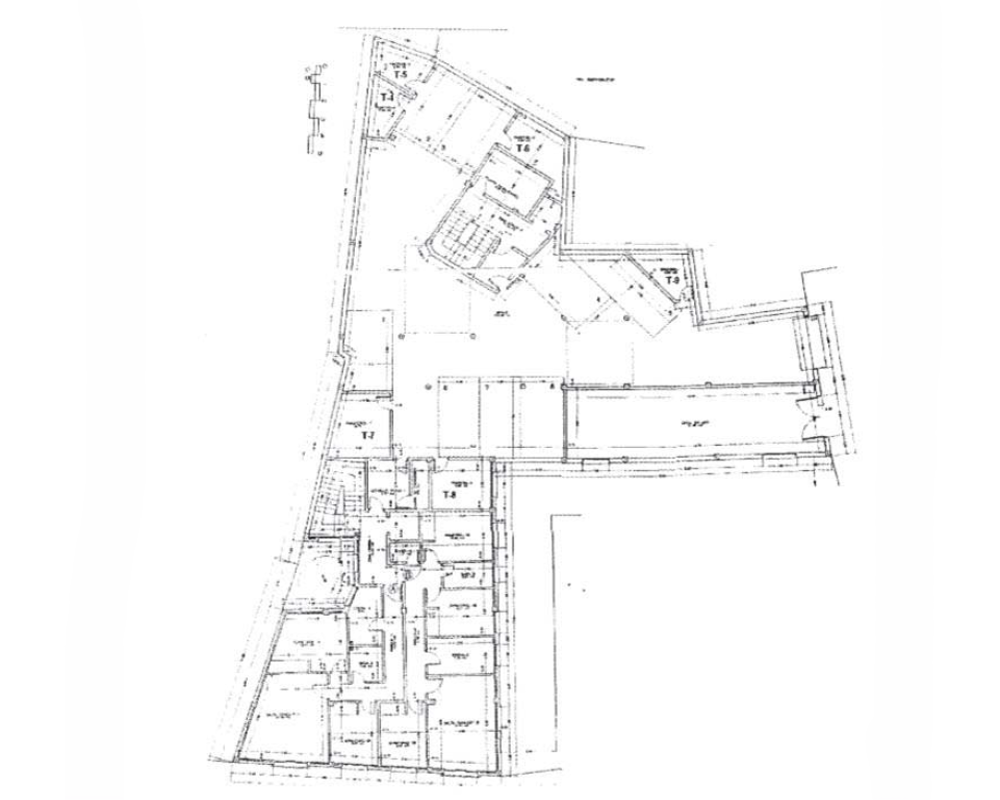
CONSTRUCCIÓN OBRA PARADA: Gran oportunidad de adquirir esta propiedad diáfana pendiente de acondicionar ubicada en la localidad de Ávila.
Un proyecto de construcción que ha sido interrumpido que constaba de 7 viviendas, 3 oficinas, 1 local comercial, 21 garajes y 9 trasteros y se encuentra en un estado de inactividad, una ubicación privilegiada que ya cuenta con una gran parte de la infraestructura construida con mucho potencial para reanudar la obra y completarla con un enfoque renovado. Se encuentra con un grado de avance de 34,18%.
- Superficie construida: 1.959 m2
- Referencia catastral: 2335411UK2523S0001FR
Muy bien comunicado al sur de la localidad con buenas conexiones por carretera por la N-403 y carreteras interurbanas, lo que facilita los desplazamientos a distintos puntos de la región o del país. La ciudad se encuentra cerca de la autovía A-6, que conecta Madrid con Galicia, lo que facilita los desplazamientos hacia otras ciudades de la región y del país. Además, la ciudad cuenta con una estación de tren que ofrece conexiones con Madrid, Salamanca, Valladolid y otras ciudades cercanas. Se encuentra a pocos metros del río Adaja, se encuentra en el centro de la ciudad, lo que permite acceder fácilmente a los principales lugares de interés turístico, así como a una amplia gama de servicios y comodidades. Ávila cuenta con una variedad de tiendas, restaurantes, bares, supermercados y otros establecimientos comerciales, que se distribuyen por el casco antiguo y las áreas circundantes. Dispone de todos los servicios públicos o privados necesarios como alumbrado, calles asfaltadas de reciente construcción.

* Los precios de los inmuebles que se muestran en la página web, así como las reservas y las ventas de viviendas publicadas, pueden variar por motivos de actualización de los mismos con los proveedores durante un plazo de 48 a 72 horas.
La presente publicación tiene carácter meramente informativo, orientativo y no vinculante, por lo que no supone información contractual alguna, siendo su uso estrictamente comercial. Este anuncio puede contener errores, se muestra a título informativo de la información recibida, sin ser responsable la inmobiliaria de dichos errores.

Solicitud enviada

En breve el anunciante contactará contigo

EMPEDRADA, Arenas de San Pedro, Avila

Viviendas relacionadas

Contacta con nosotros

Los datos de carácter personal que consten en la consulta serán tratados por PROYECTIZATE EN LA NUBE, S.L. e incorporados a la actividad de tratamiento CONTACTOS, cuya finalidad es atender tus solicitudes, peticiones o consultas recibidas desde la web, mediante correo electrónico o telefónico. Dar respuesta a tu solicitud y hacer un seguimiento posterior. La legitimación del tratamiento es tu consentimiento. Tus datos no serán cedidos a terceros. Tienes derecho a acceder, rectificar y suprimir tus datos, así como otros derechos como se explica en nuestra política de privacidad: https://www.adelopd.com/privacidad/proyectizate-en-la-nube-sl

Otros pisos en Ávila

Otras búsquedas